EasyManua.ls Logo

Systec DE-45 - Voltage Stabiliser for the LM1085 Analogue Circuit Board; Power Transistor VNP5 N07 8 (V;D - 65 Only)

Default Icon
219 pages
Print Icon
To Next Page IconTo Next Page
To Next Page IconTo Next Page
To Previous Page IconTo Previous Page
To Previous Page IconTo Previous Page
Loading...
V/D
S
ERIES
E
LECTRICAL ASSEMBLIES
4-14 Revision: 2.1
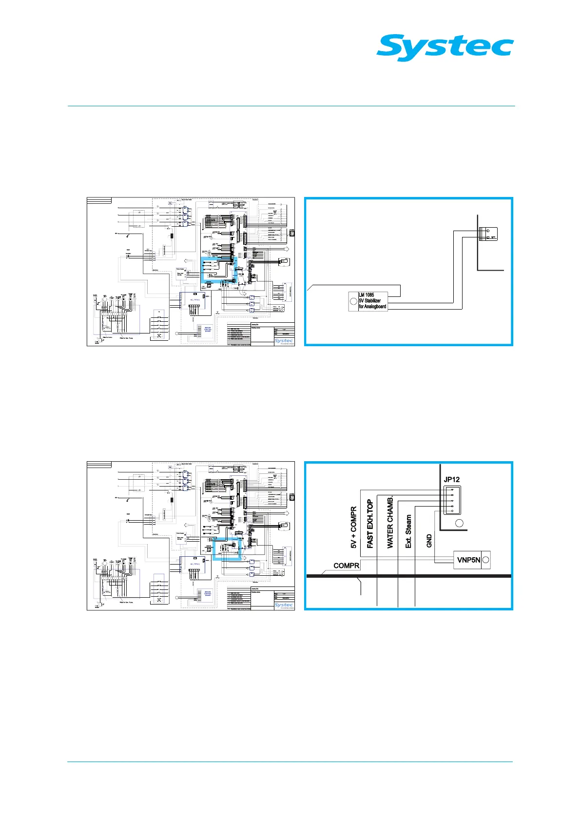
4.1.9 Voltage stabiliser for the LM1085 analogue circuit board
The LM1085 taps 12 V from the power supply and sends a stabilised
voltage of 5.00 V ± 0.01 V for the measuring circuits of the analogue circuit
board AS1002.
LM1085
12V
5V-ST
JP12
JP3
JP7
JP2
JP1
AC_T1FULL
JP4
240V
240V
240V
HEAT-L2
3 +
4 -
1
SSR
2
HEAT-L1
1
SSR
4 -
3 +
2
2
SSR
HEAT-L3
3 +
1
4 -
AC-1
CONNECTOR
1
L N
1 1
2 2
GND
VAR
VAR
VAR
Axial fan
(control system)
STEAM TO CHAMBER
WATER TO COIL
COOLING DRAIN
COMPRESSED AIR TO CHAMBER
ATM. AIR
FAST EXHAUST
VACUUM
CONDENCE
DOOR RING
VACUUM BREAKER
24VAC-1
24VAC-1
24VAC-2
24VAC-2
GND-3
CIRC-PUMP
VAC-PUMP
WATER-PUMP
HEATERS
5V-3
PANEL-1
5V
GND
5V-ST
HEATERS
WATER-PUMP
VAC-PUMP
5V
GND
GND
LM 1085
5V Stabilizer
for Analogboard
12V
5VSSR-1
1
JP5
2
1
2
1
2
OUT 1
OUT 2
OUT 3
OUT 4
OUT 5
OUT 6
OUT 9
OUT 8
OUT 7
OUT 12
OUT 11
OUT 10
OUT 15
OUT 14
OUT 13
OUT 16
AN1
AN3
AN2
AN4
AN5
AN8
AN7
AN6
AN9
4 4
3 3
A2
CONNECTOR
AC-2
6
1
PE
3
2
4
PE
GND
N
CUT OFF
2
1
3
4 4
3
2
1
6
121110987652 3 41
AIR
Gen. WATER
VALVE Y13 VALVE Y14
PUMP
(M1)
42
GND
1 3
PT-100
PT-100
PT-100
FLAT-CABLE
40 PIN
CHAMBER TEMP
(TS 1)
COND. TEMP
(TS 2)
DRAIN.TEMP
(TS 4)
JP13JP8
JP7JP6
JP11
JP8
JP1
JP12
JP14
JP6
JP4
JP5
JP3
JP1
JP2
JP16
JP17
JP9
JP7
JP13
JP15
JP12
COMPR
VNP5N
COMPR
111
1
1
1
11
1
1
1
1
K1
5VSSR-1
5V + COMPR
RED
BLACK
BLACK
RED
BLACK
BLACK
BLACK
BLACK
RED
AS1002
DS1002
Atm.Press
40mbar
Switch
Y7
Y8
12V
GND-2
FILTER
N
5V
5V
GND
GND
DATA
DATA
DATA
DATA
1
1
4
4
FLOW SWITCH Gen PUMP
RING CLOSE
RING OPEN
DOOR CLOSE
FLOW SWITCH VAC PUMP
GND
IN 1
IN 2
IN 3
IN 4
IN 5
IN 6
IN 12
IN 11
IN 10
IN 9
IN 8
IN 7
JP11
JP10
11
RING CLOSE 2
RING CLOSE 3
RING CLOSE 4
Fuses at rear side
G
e
n
e
ra
l co
n
n
e
cto
r
GASKET SWITCH
A1
Main Filter
Gen. WATER
Filter for Gen. Pump
Filter for Comp.
Y4
Y10b
Y5
Y11
Y6
Y12
Y1
Y9
Y3
Y10a
Cool pipe flushing
Electrobox
Electrobox
Electrobox
1
4
MAIN
SWITCH
16A/250V
N
L1
Cut off (STB)
L1
F1
F2
F3
RD-35A
Mean Well
Power Supply
GND
5V-2
12V
COM
V1
V2
NL
ìNî
Terminal
Filter for Main Relais
115V AC
115V AC
12V AC
PRIMARY TRANSFORMER
(230V to 24V)
12V AC
5
3
1
2
4
6
F5
F6
F 4 - Main fuse (10A)
F 5 - Primary fuse (800mA)
F 6 - Secondary fuse (5A)
F 7 - Compressor fuse (2A)
F 8 -Resettable vacuum pump fuse (3A)
F 9 - Water pump fuse (2A)
F11 - Resettable motor control fuse (3,5A)
F8
F9
F7
F10
F4
H1
Heating element overview
DX65-200 =9000W (400V * / 230/254V?)
WATER TO COIL (OPTIONAL)
FAN (M9)
COOLING CHAMBER
L2
L3
To AES 1002 (option)
To AES 1002
(option)
To AES 1002
(option)
WATER CHAMB. Y17
FAST EXH.TOP Y16
Ext Steam Y18
FAST EXH.TOP
WATER CHAMB.
Ext. Steam
1
2
3
4
SSR
5A
240V
1
2
3
4
SSR
5A
240V
1
2
3
4
SSR
5A
240V
VAR
VAR
VAR
FAST EXH.TOP Y16
FAST EXH.TOP
1
2
3
4
SSR
5A
240V
CONDENCE 2
Y9-2
(DATA MODUL)
PRINTER
TXD
GND-5
CN5
DTR
2
3
4
5V
GND
GND
5V
CN2
RXD
1
3
4
2
1
TXD
RXD
DTR
GND-5
X 1.1
X 1.2
X 1.3
X 1.4
X 1.5
X 1.6
X 1.7
X 1.8
X 1.9
M4
-
Radial Fan
24V DC
(M4)
+
24VAC-1
24VAC-2
CIRC-PUMP
MOTOR
CONTROL
BOARD
F11
COMP.
(M3)
A
GND
Capacitor
for Comp.
White
Gr
ey
B
lack
Water-ring
vacuum
pump
(M2)
V
ac. Water
V
alve Y
15
AP
MPX
5700
GEN.PRESS
(PS 1)
PT-100
CHAMB. TEMP2
(TS 3)
BLACK
BLACK
RED
ELECTR HIGH (E1)
ELECTR LOW (E2)
ELECTR CHAMB (E3)
CHAMBER PRESS
(PS 2)
12V
+
S-
Huba Control
STEAM TO COIL
Y2
A3
Size:
Date: 18.02.2010
Drawing No:
Drawing name:
Page:
1 of 1
Wiring diagram
Systec DX 65-200
Fig. 13: Analogue circuit board LM1085: Position in the circuit diagram
4.1.10 Power transistor VNP5N07 8 (V/D – 65 only)
The air compressor transistor inverts the positive signal from JP12
(DS1002) and uses an optocoupler to switch the TRIAC for the air
compressor on the circuit board ACT1.
JP3
JP7
JP2
JP1
AC_T1FULL
JP4
240V
240V
240V
HEAT-L2
3 +
4 -
1
SSR
2
HEAT-L1
1
SSR
4 -
3 +
2
2
SSR
HEAT-L3
3 +
1
4 -
AC-1
CONNECTOR
1
L N
1 1
2 2
GND
VAR
VAR
VAR
Axial fan
(control system)
STEAM TO CHAMBER
WATER TO COIL
COOLING DRAIN
COMPRESSED AIR TO CHAMBER
ATM. AIR
FAST EXHAUST
VACUUM
CONDENCE
DOOR RING
VACUUM BREAKER
24VAC-1
24VAC-1
24VAC-2
24VAC-2
GND-3
CIRC-PUMP
VAC-PUMP
WATER-PUMP
HEATERS
5V-3
PANEL-1
5V
GND
5V-ST
HEATERS
WATER-PUMP
VAC-PUMP
5V
GND
GND
LM 1085
5V Stabilizer
for Analogboard
12V
5VSSR-1
1
JP5
2
1
2
1
2
OUT 1
OUT 2
OUT 3
OUT 4
OUT 5
OUT 6
OUT 9
OUT 8
OUT 7
OUT 12
OUT 11
OUT 10
OUT 15
OUT 14
OUT 13
OUT 16
AN1
AN3
AN2
AN4
AN5
AN8
AN7
AN6
AN9
4 4
3 3
A2
CONNECTOR
AC-2
6
1
PE
3
2
4
PE
GND
N
CUT OFF
2
1
3
4 4
3
2
1
6
121110987652 3 41
AIR
Gen. WATER
VALVE Y13 VALVE Y14
PUMP
(M1)
42
GND
1 3
PT-100
PT-100
PT-100
FLAT-CABLE
40 PIN
CHAMBER TEMP
(TS 1)
COND. TEMP
(TS 2)
DRAIN.TEMP
(TS 4)
JP13JP8
JP7JP6
JP11
JP8
JP1
JP12
JP14
JP6
JP4
JP5
JP3
JP1
JP2
JP16
JP17
JP9
JP7
JP13
JP15
JP12
COMPR
VNP5N
COMPR
111
1
1
1
11
1
1
1
1
K1
5VSSR-1
5V + COMPR
RED
BLACK
BLACK
RED
BLACK
BLACK
BLACK
BLACK
RED
AS1002
DS1002
Atm.Press
40mbar
Switch
Y7
Y8
12V
GND-2
FILTER
N
5V
5V
GND
GND
DATA
DATA
DATA
DATA
1
1
4
4
FLOW SWITCH Gen PUMP
RING CLOSE
RING OPEN
DOOR CLOSE
FLOW SWITCH VAC PUMP
GND
IN 1
IN 2
IN 3
IN 4
IN 5
IN 6
IN 12
IN 11
IN 10
IN 9
IN 8
IN 7
JP11
JP10
11
RING CLOSE 2
RING CLOSE 3
RING CLOSE 4
Fuses at rear side
G
e
n
e
ra
l co
n
n
e
cto
r
GASKET SWITCH
A1
Main Filter
Gen. WATER
Filter for Gen. Pump
Filter for Comp.
Y4
Y10b
Y5
Y11
Y6
Y12
Y1
Y9
Y3
Y10a
Cool pipe flushing
Electrobox
Electrobox
Electrobox
1
4
MAIN
SWITCH
16A/250V
N
L1
Cut off (STB)
L1
F1
F2
F3
RD-35A
Mean Well
Power Supply
GND
5V-2
12V
COM
V1
V2
NL
ìNî
Terminal
Filter for Main Relais
115V AC
115V AC
12V AC
PRIMARY TRANSFORMER
(230V to 24V)
12V AC
5
3
1
2
4
6
F5
F6
F 4 - Main fuse (10A)
F 5 - Primary fuse (800mA)
F 6 - Secondary fuse (5A)
F 7 - Compressor fuse (2A)
F 8 -Resettable vacuum pump fuse (3A)
F 9 - Water pump fuse (2A)
F11 - Resettable motor control fuse (3,5A)
F8
F9
F7
F10
F4
H1
Heating element overview
DX65-200 =9000W (400V * / 230/254V?)
WATER TO COIL (OPTIONAL)
FAN (M9)
COOLING CHAMBER
L2
L3
To AES 1002 (option)
To AES 1002
(option)
To AES 1002
(option)
WATER CHAMB. Y17
FAST EXH.TOP Y16
Ext Steam Y18
FAST EXH.TOP
WATER CHAMB.
Ext. Steam
1
2
3
4
SSR
5A
240V
1
2
3
4
SSR
5A
240V
1
2
3
4
SSR
5A
240V
VAR
VAR
VAR
FAST EXH.TOP Y16
FAST EXH.TOP
1
2
3
4
SSR
5A
240V
CONDENCE 2
Y9-2
(DATA MODUL)
PRINTER
TXD
GND-5
CN5
DTR
2
3
4
5V
GND
GND
5V
CN2
RXD
1
3
4
2
1
TXD
RXD
DTR
GND-5
X 1.1
X 1.2
X 1.3
X 1.4
X 1.5
X 1.6
X 1.7
X 1.8
X 1.9
M4
-
Radial Fan
24V DC
(M4)
+
24VAC-1
24VAC-2
CIRC-PUMP
MOTOR
CONTROL
BOARD
F11
COMP.
(M3)
A
GND
Capacitor
for Comp.
White
Gr
ey
B
lack
Water-ring
vacuum
pump
(M2)
V
ac. Water
V
alve Y
15
AP
MPX
5700
GEN.PRESS
(PS 1)
PT-100
CHAMB. TEMP2
(TS 3)
BLACK
BLACK
RED
ELECTR HIGH (E1)
ELECTR LOW (E2)
ELECTR CHAMB (E3)
CHAMBER PRESS
(PS 2)
12V
+
S-
Huba Control
STEAM TO COIL
Y2
A3
Size:
Date: 18.02.2010
Drawing No:
Drawing name:
Page:
1 of 1
Wiring diagram
Systec DX 65-200
Fig. 14: Power transistors VNP5N07: Position in the circuit diagram

Table of Contents

Related product manuals