EasyManua.ls Logo

SystemAir PAW-200W5APAC

SystemAir PAW-200W5APAC
44 pages
To Next Page IconTo Next Page
To Next Page IconTo Next Page
To Previous Page IconTo Previous Page
To Previous Page IconTo Previous Page
Loading...
33
English
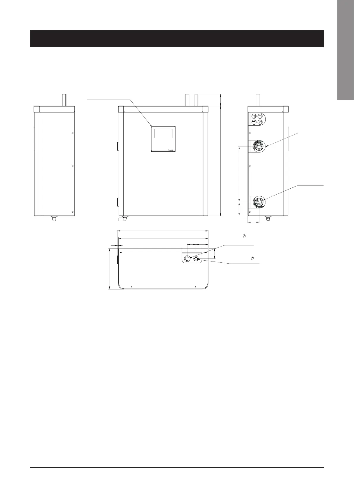
8 - Technical Data
8.5 Dimensional Drawings - WHE
550 60
CONTROLLER KEYPAD
DISPLAY
)52179,(:
70 279
57
WATER INLET
1 1/4" Gas M
WATER OUTLET
1 1/4" Gas M
/()79,(:
455
10
205
62 44
51
450
LIQUID PIPE
1/2"
(BRAZED)
GAS PIPE
3/4"
(BRAZED)
7239,(:
5,*+79,(:
J37278 Rev

Related product manuals