EasyManua.ls Logo

Systemline E50 - Page 10

Systemline E50
16 pages
Print Icon
To Next Page IconTo Next Page
To Next Page IconTo Next Page
To Previous Page IconTo Previous Page
To Previous Page IconTo Previous Page
Loading...
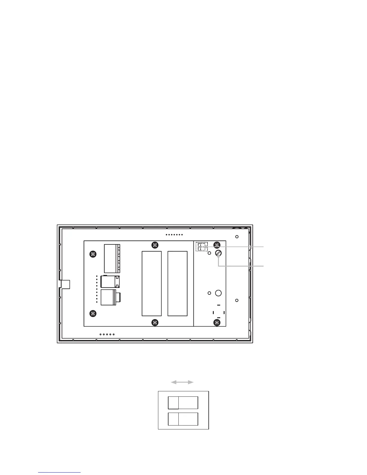
DIP switch (under)
Volume adjustment
screw (through hole)
ON
2 Flat EQ
Treble and
bass boost
Stereo
1 Mono
OFF
10
Installer Adjustments
Maximum volume setting
To restrict the maximum volume to a level anywhere from min to max, adjust the
preset screw (labelled below) with a small flat blade screw driver until the desired level
is indicated on the front panel. This adjustment must be made with the unit powered
up in order to see the indication.
Mono/Stereo setting
To set the amplifier output to mono, use a ball point pen or small screw driver to move
the DIP switch #1 (labelled below) to the OFF position. The default position for this
switch is ON (stereo).
EQ adjustment
To adjust the EQ to a flat response, use a ball point pen or small screw driver to move
the DIP switch #2 to the OFF position. The default position for this switch is ON (treble
and bass boost for Qi 65CB speakers).
Rear panel controls for installer adjustments
DIP switch detailed view

Other manuals for Systemline E50

Related product manuals