EasyManua.ls Logo

Tappan TGF657BFW2 - Page 20

Tappan TGF657BFW2
24 pages
Print Icon
To Next Page IconTo Next Page
To Next Page IconTo Next Page
To Previous Page IconTo Previous Page
To Previous Page IconTo Previous Page
Loading...
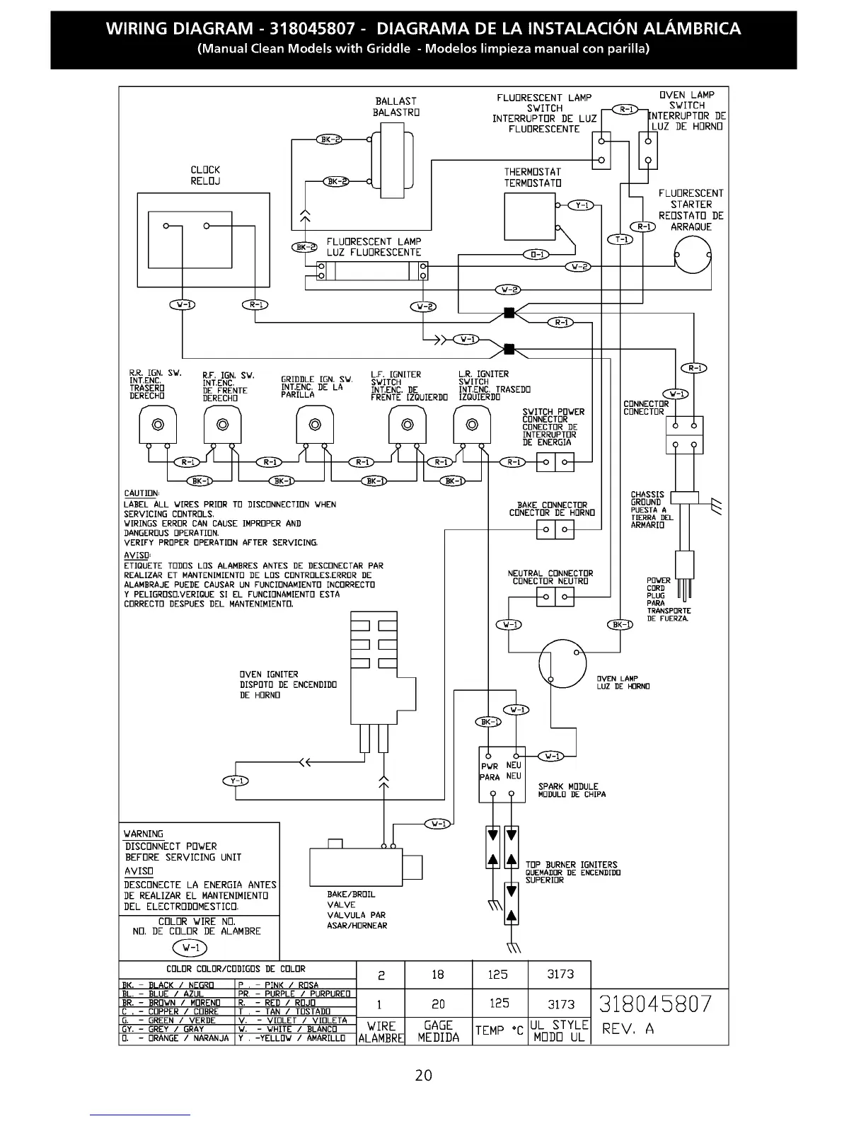
CLOCK
RELBJ
BALLAST
BALASTRO
FLUORESCENT LAMP
SWITCH
INTERRUPTOR DE LUZ I
FLUORESCENTE ___
THERMOSTAT
TERMOSTATO
OVEN LAMP
SWITCH
NTERRUPTOR DE
UZ DE HORND
FLUORESCENT
REnSTATO I)E
ARRAOUE
FLUORESCENT LAMP
-_) LUZ FLUFIRESCENTE
IRI(._I.GN.SW. R.F. IGN. S:W.............. L.F. IGNITER L.R. IGNITER
'_'_' INT ENC u?__u__£__Lu,,:pw. SWITCH SWITCH
TRASERD ' ' .NtLNU UL LA NT
.. DE FRENTE n*;-;.,. 'i INT.ENC. DE I ,ENC, TRASEDO , ,_
DERECNu DERECHO rMI_LLLH FRENTE IZQUIERDO IZQUIERDO _ P
_ _ _ _ ]NNECTOI
t _ I \ i \ / \ / \ SWITCH POWER ]NECTOR
I r_, I I ,_, I I r_, I I r_, I I r_, I CONNECTOR --
I _ I I u_ I I _ I I LV) I I _ I CONECTORBE (
I I I I I I I I I I INTERRUPTOR
-
CAUTION: CHASSIS -- q
LABELALLWIRE_PRIORTODISCONNECTIONWHEN BAKECONNEOTOR GROUND
SERVICINGOONTROL_ CONEOTORBEHORNO _# _. !
WIRINGS ERROR CAN CAUSE IMPROPER AND _ ARMARIO /
DANGEROUS OPERATION. I _ /
VERIFY PROPER OPERATION AFTER SERVICING. I
AVISO,
ET---?TQUETETODOS LOS ALAMBRES ANTES BE BESCONECTAR PAR
REALIZAR ET MANTENIMIENTO DE LOS CONTROLESERROR DE NEUTRAL CONNECTOR
ALAMBRAJE PUEDE CAUSAR UN FUNCIONAMIENTO INCORRECTO _CONECTOR NEUTRO _"_R
IIII
Y PELIGROSO.VERIQUE SI EL FUNCIONAMIENTO ESTA _ I o-I-- PLUG IIII
CORRECTB BESPUES BEL MANTENIMIENTB. I I I I PARA
u
TRANSPDRTE
OVEN IGNITER I I I \ t /
BVEN LAMP
£ISPOTO BE ENCENBIDn I _ I _ IOUVENDEHORN{]
BE HORNO I I , L I
( ,/R EU
/ix I I SPARK MODULE
WARNING __ I_ _I
_ECT POWER I I 66 q /
I -I
BEFORE SERVICING UNIT
ILlT P RN R N T R
AVISO -, o Du E IGIESI I I T_ OUE_A_nRD__NC_N_IDn
_TgigNECTE
LA ENERGIA ANTES L -- J_ / -_
/
SUPERIOR
DE REALIZAR EL MANTEN[MIENTB BAKEIBROIL J_ TI
I)EL ELECTRODBMESTICO, VALVE \\\ I
-- -- -- VALVULA PAR _IL
COLOR WIRE NO. ASAR/HORNEAR :J
NO, DE COLOR DE ALAMBRE
@
COLOR COLOR/CODIGOS DE COLOR ;3 18
OK. - BLACK / NEGRO I P , - PINK / ROSA
BL. - BLUE / AZUL I PR PURPLE / PURPUREO
OR. - BROWN / MORENO I R - RED / ROJO 1 _0
C . - COPPER I COBRE T . - TAN I TOSTADO
O. - GREEN I VERDE V, - VIOLET / VIOLETA
GY. - GREY / GRAY i - WHITE / BLANCO _l RE GAGE
O. - ORANGE / NARANJA _ -YELLOW / AMARILLO ALAFIBRE MEDIDA
125 3173
I£5 3173
TEMP °C SLODSoTYuLE
318045807
REV, A
20

Related product manuals