EasyManua.ls Logo

TCL TAC-09CS - Refrigerating Cycle System

TCL TAC-09CS
138 pages
Print Icon
To Next Page IconTo Next Page
To Next Page IconTo Next Page
To Previous Page IconTo Previous Page
To Previous Page IconTo Previous Page
Loading...
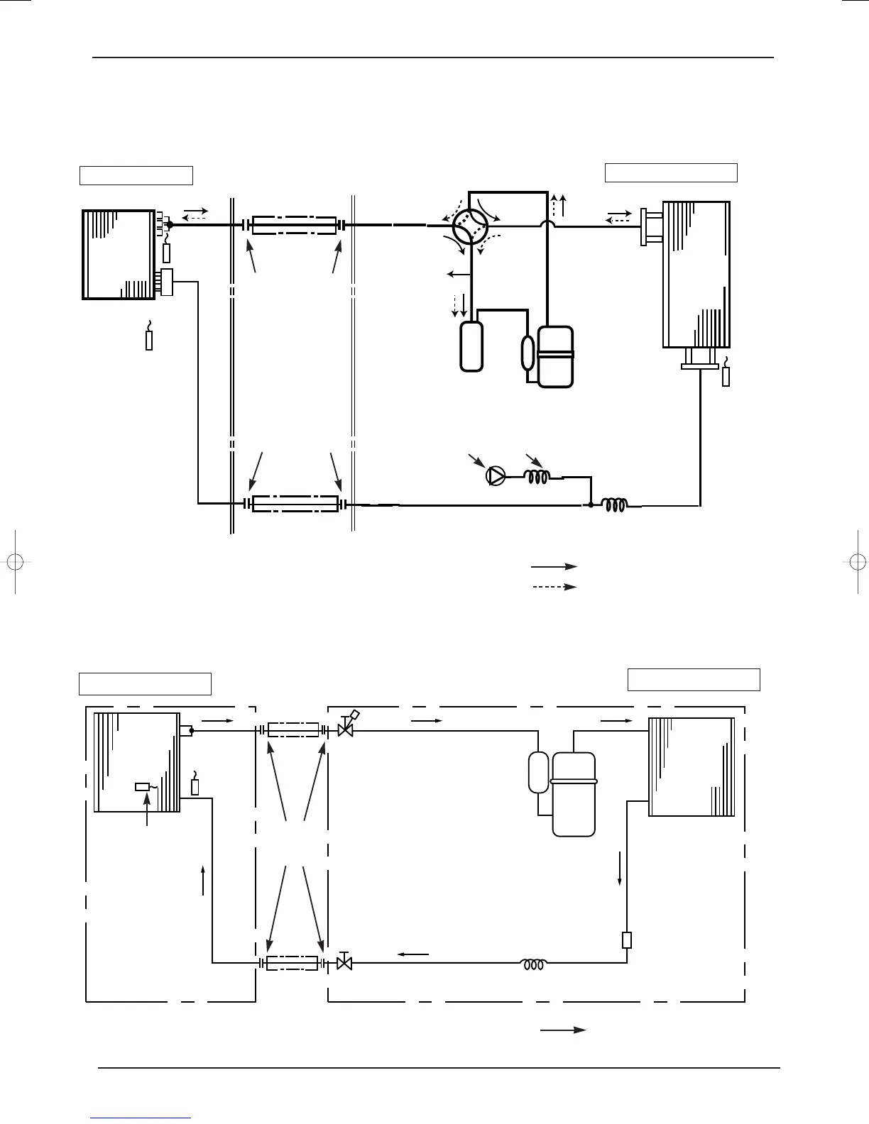
Heat Pump
INDOOR UNIT
OUTDOOR UNIT
Indoor
heat
exchanger
Room temperature
thermistor
Refrigerant pipe
(Option)
(with heat insulator)
Flared connection
Flared connection
Indoor coil
thermistor
Refrigerant pipe
(Option)
(with heat insulator)
Check
valve
Capillary tube
Capillary tube
Defrost
thermistor
Compressor
Accumulator
Outdoor
heat
exchanger
Refrigerant flow in cooling or Defrosting
Refrigerant flow in heating
Distributor
Reversing valve
(4- way valve)
OB207t-1qxp 25/9/97 8:53 PM Page 26
Cooling Only
INDOOR UNIT
OUTDOOR UNIT
Refrigerant pipe
(Optional)
(with heat insulator)
Stop valve
(with service port)
Strainer
Refrigerant pipe
(Option)
(with heat insulator)
Stop valve
Capillary tube
Refrigerant flow in cooling
Outdoor
heat
exchanger
Room temperature
thermistor
Indoor coil
thermistor
Flared
connection
Compressor
Indoor
heat
exchanger
Refrigerating Cycle System
TCL Air Conditioner Service Manual
22
9

Table of Contents

Related product manuals