EasyManua.ls Logo

TDE MACNO OPEN DRIVE - Power Stage Description

TDE MACNO OPEN DRIVE
66 pages
Print Icon
To Next Page IconTo Next Page
To Next Page IconTo Next Page
To Previous Page IconTo Previous Page
To Previous Page IconTo Previous Page
Loading...
36
Istruzioni per l’installazione / Installation instructions
Rev. 3.1 - 29.04.09 - IT (originali) / EN (Translations from original instructions)
Open Drive - Mod. 03A ÷ 460A
S.p.A.
INSTALLAZIONE / INSTALLATION
5
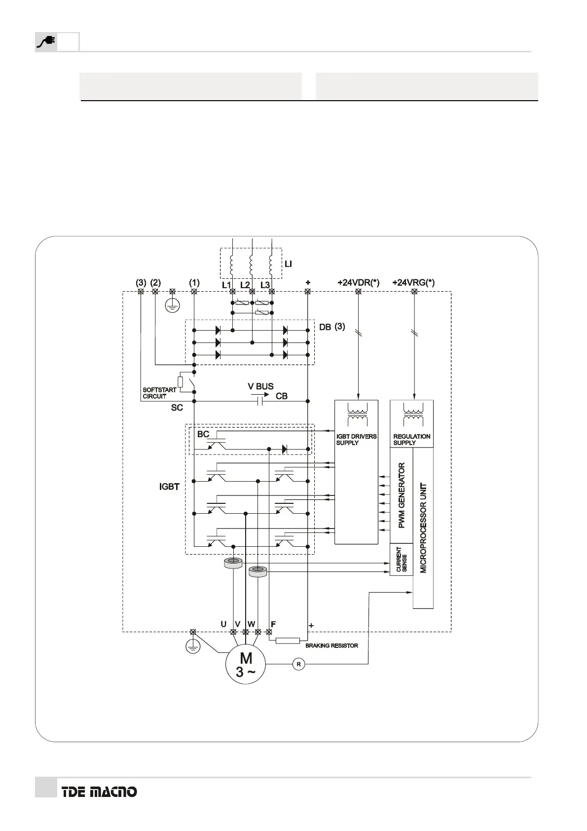
5.2.1- SESSIONE DI POTENZA
La tensione di rete applicata ai morsetti L1, L2, L3
(v. FIG. 8) viene raddrizzata dal ponte a DB (per le
taglie OPD 03A÷60A DB è un ponte a diodi, mentre
per le taglie OPD 70A÷460A DB è un ponte
semicontrollato a diodi-tiristori) e filtrata dalla batteria
di condensatori CB. La tensione continua VBUS viene
quindi modulata da sei IGBT pilotati dalla scheda
Driver gestita dal microprocessore. U,V,W sono le fasi
motore (tensione PWM) (FIG. 8).
5.2.1- POWER STAGE
The mains voltage applied to terminals L1, L2, L3
(s. FIG. 8) is rectified by the rectifier bridge DB (for
sizes OPD 03A÷60A DB is a diode bridge, whereas for
sizes OPD 70A÷460A DB is a diode-thyristor semi-
controlled bridge rectifier) and is filtered by capacitor
bank CB. VBUS continuous voltage is modulated by
six IGBTs that are piloted by the microprocessor-
controlled Driver card. U,V,W are the motor phases
(PWM voltage) (FIG. 8).
FIG. 8
(Sessione di potenza / Power stage)
(*) Solo per prodotti con versione A - v. codifica par. 3.2.1 / Only for products with version A – see coding, par. 3.2.1
(1) Solo per modelli OPD 03A÷32A e 40A÷60A con tensione di ingresso AC / Only for models OPD 03A÷32A and 4060A
with AC input voltage
(2) Solo per modelli OPD 40A ÷ 60A con tensione di ingresso DC / Only for models OPD 40A ÷ 60A with DC input
(3) Solo per modelli OPD 70A÷460A con tensione di ingresso DC / Only for models OPD 70A÷460A with DC input

Related product manuals