EasyManua.ls Logo

Technoblock AS Series - Installation Methods

Default Icon
Print Icon
To Next Page IconTo Next Page
To Next Page IconTo Next Page
To Previous Page IconTo Previous Page
To Previous Page IconTo Previous Page
Loading...
19
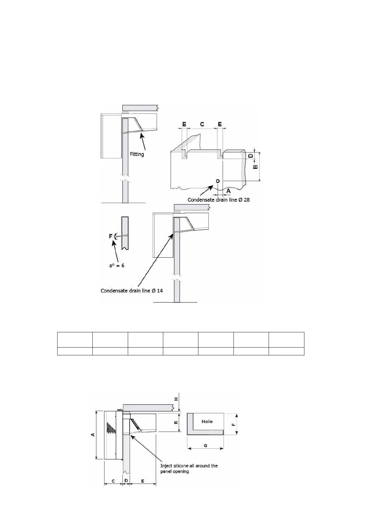
6.5 Installation
Straddle version:
before mounting the unit prepare the cuts and holes in the cold room wall shown in the picture.
Fix the unit in place with the appropriate screws. Position the unit on the cold room, connect the evaporator
drain tray spigot and the hole prepared in the cold room wall using the supplied fitting with pre-inserted
heater (for low temperature units only). Secure with the appropriate screw.
Fill the hole in the wall with insulating material, polyurethane or silicone, and mount the hole cover.
A
mm
B
mm
C
mm
D
mm
E
mm
F
AS1 19 316 288 83 43 6
Thru-wall version (optional):
A) Prepare a opening with suitable dimensions in the cold room wall (see picture).
B) Position the unit onto the cold room wall inserting the evaporator section in the opening.
C) Fix the unit using the screws supplied.