EasyManua.ls Logo

Technoblock AS Series - Aufstellen der Maschine; Hinweise; Installation der Maschine; Platzbedarf der Maschine

Default Icon
Print Icon
To Next Page IconTo Next Page
To Next Page IconTo Next Page
To Previous Page IconTo Previous Page
To Previous Page IconTo Previous Page
Loading...
41
6. Installation der Maschine
6.1 Hinweise
Der Hersteller hat entsprechende Warn- und Achtungschilder mit den Hinweisen in der Tabelle vorgesehen
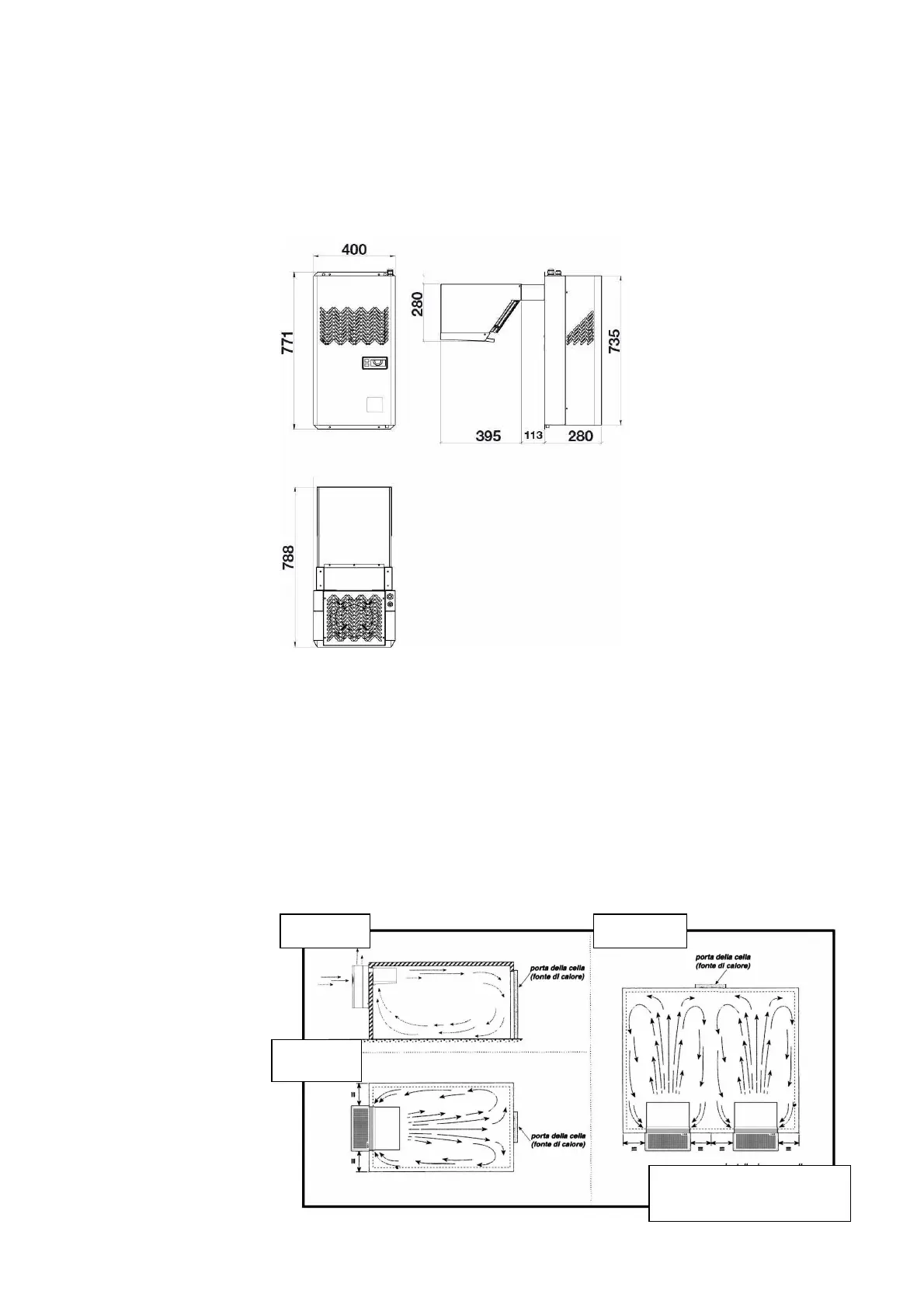
6.2 Platzbedarf der Maschine
6.3 Aufstellen der Maschine
Um einen optimalen Betrieb zu gewährleisten, müssen folgende Ratschläge
beachtet werden:
A) Das Gerät an einem gut belüfteten Ort und von Wärmequellen entfernt
aufstellen.
B) Die Zelle möglichst wenig öffnen.
C) Versichern Sie sich, dass das Gerät genügend Luft aufnehmen kann und
auch über einen guten Ausstoß der bewegten Luft verfügt.
D) Bringen Sie am Kondenswasserablass, der sich am unteren Teil des Gerätes
befindet, ein Rohr an, damit das Kondenswasser abfließen kann.
Anm.: Die AS Einheiten sind mit einem Verdampfungssystem des
Kondenswassers ausgestattet, der Abfluss ist nur eine Vorsichtsmaßnahme im
Fall von Betriebs- und Anwendungsunregelmäßigkeiten.
Installation auf Zelle mit
mehreren Einheiten
Lösung 1
Lösung 2
Lösung 3