EasyManua.ls Logo

Technoblock SVN0050 - 6 Installation der Maschine; Hinweise; Platzbedarf der Maschine; Aufstellen der Maschine

Default Icon
Print Icon
To Next Page IconTo Next Page
To Next Page IconTo Next Page
To Previous Page IconTo Previous Page
To Previous Page IconTo Previous Page
Loading...
43
6. Installation der Maschine
6.1 Hinweise
Der Hersteller hat entsprechende Warn- und Achtungschilder mit den Hinweisen in der Tabelle vorgesehen
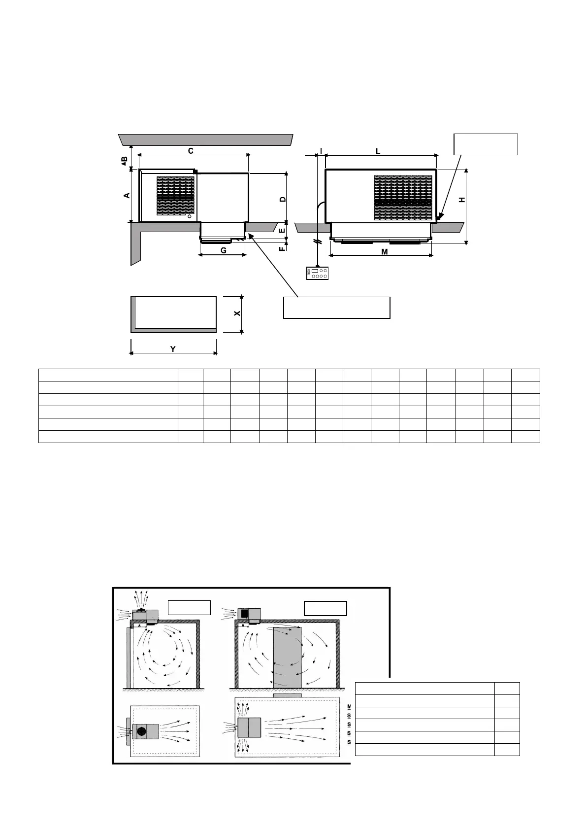
6.2 Platzbedarf der Maschine
Mod. A B C D E F G H I L M X Y
SVN0050
378
250 784 307 120 27 301 525 60 430 350 306 355
SVN1060-N1075 / SVK1120-K1170
357
250 719 340 122 28 332 506 60 620 545 337 550
SVN2100-N2122-N2120 / SVK2220
390
250 809 360 122 28 332 540 60 820 745 337 750
SVN3150-N3200 / SVK3250-K3300
427
250 929 410 122 98 452 645 60 820 745 456 750
SVN4250-N4300 / SVK4450-K4500
542
250 1046
520 122 98 452 785 60 1075
1000
458 1005
6.3 Aufstellen der Maschine
Um einen optimalen Betrieb zu gewährleisten, müssen folgende Ratschläge beachtet werden:
A) Das Gerät an einem gut belüfteten Ort und von Wärmequellen entfernt aufstellen.
B) Die Zelle möglichst wenig öffnen.
C) Versichern Sie sich, dass das Gerät genügend Luft aufnehmen kann und
auch über einen guten Ausstoß der bewegten Luft verfügt.
D) Bringen Sie am Kondenswasserablass, der sich am unteren Teil des Gerätes befindet, ein Rohr an,
damit das Kondenswasser abfließen kann.
Anm.: Die SV Einheiten sind mit einem Verdampfungssystem des Kondenswassers ausgestattet, der
Abfluss ist nur eine Vorsichtsmaßnahme im Fall von Betriebs- und Anwendungsunregelmäßigkeiten.
Lösung 1
Inject silicone on the whole
con
veyor perimeter
Condensate drain
line D. 10
Mod. A
SVN0050
378
SVN1060-N1075 / SVK1120-K1170
357
SVN2100-N2122-N2120 / SVK2200
390
SVN3150-N3200 / SVK3250-K3300
427
SVN4250-N4300 / SVK4450-K4500
542
Lösung 2

Table of Contents

Related product manuals