EasyManua.ls Logo

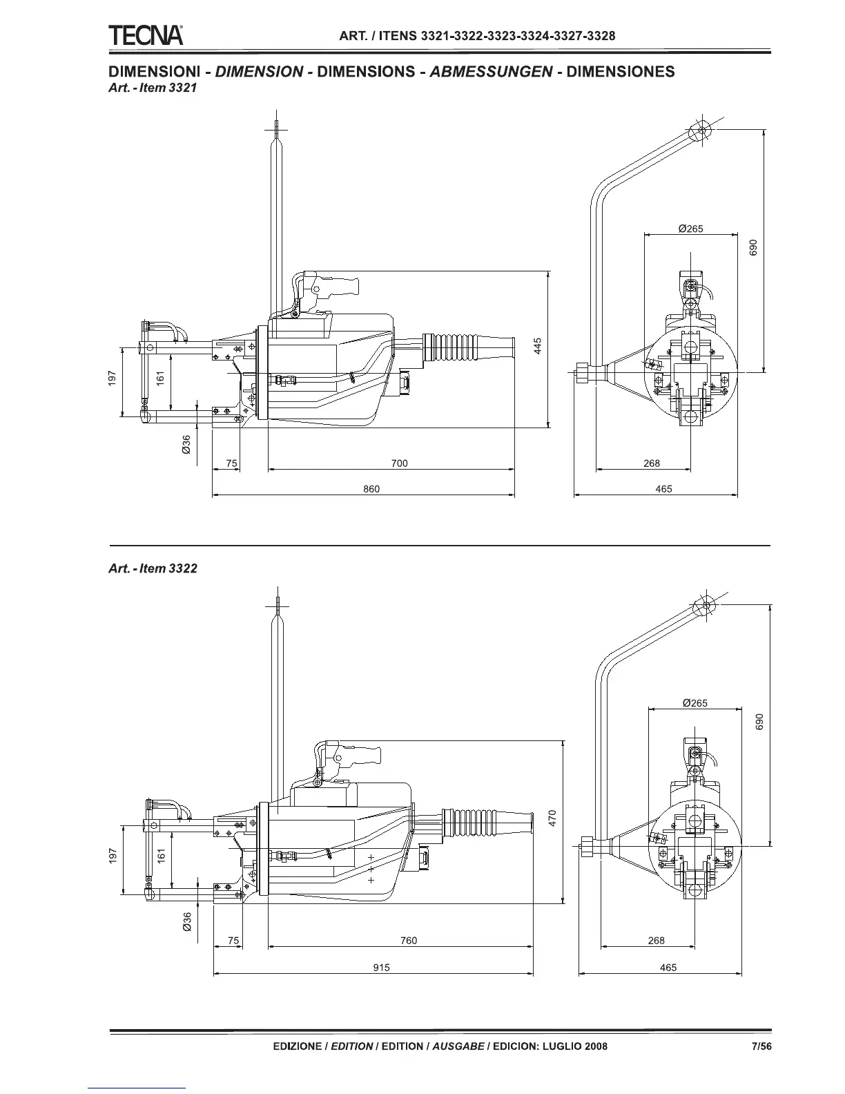
TECNA 3321 - Product Dimensions; Dimensions for Items 3321 & 3322

TECNA 3321
56 pages
Print Icon
To Next Page IconTo Next Page
To Next Page IconTo Next Page
To Previous Page IconTo Previous Page
To Previous Page IconTo Previous Page
Loading...

Related product manuals