EasyManua.ls Logo

Tecumseh Argus - Page 21

Tecumseh Argus
36 pages
Print Icon
To Next Page IconTo Next Page
To Next Page IconTo Next Page
To Previous Page IconTo Previous Page
To Previous Page IconTo Previous Page
Loading...
19
Remote Condensing Unit Installation Instructions
©2019 Tecumseh Compressor Company LLC. All rights reserved. TPC Part #71511 | Rev A 05/13/2019www.tecumseh.com
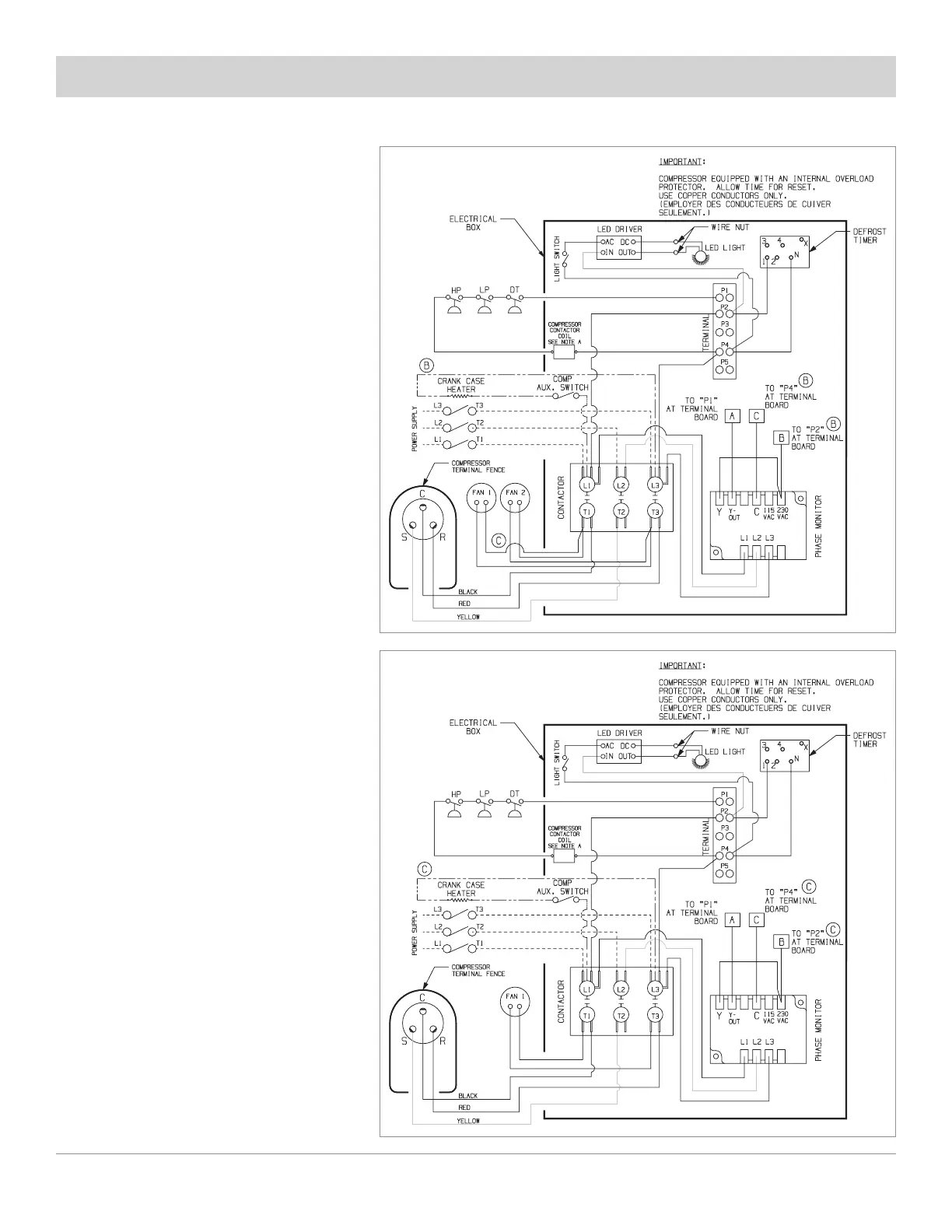
91293-1
91294
200-230 Volt
3 Phase
2 Fan Motors
200-230 Volt
3 Phase
1 Fan Motor

Related product manuals