EasyManua.ls Logo

Telcoma Automations TAG SX - Page 4

Telcoma Automations TAG SX
20 pages
Print Icon
To Next Page IconTo Next Page
To Next Page IconTo Next Page
To Previous Page IconTo Previous Page
To Previous Page IconTo Previous Page
Loading...
4
I F E
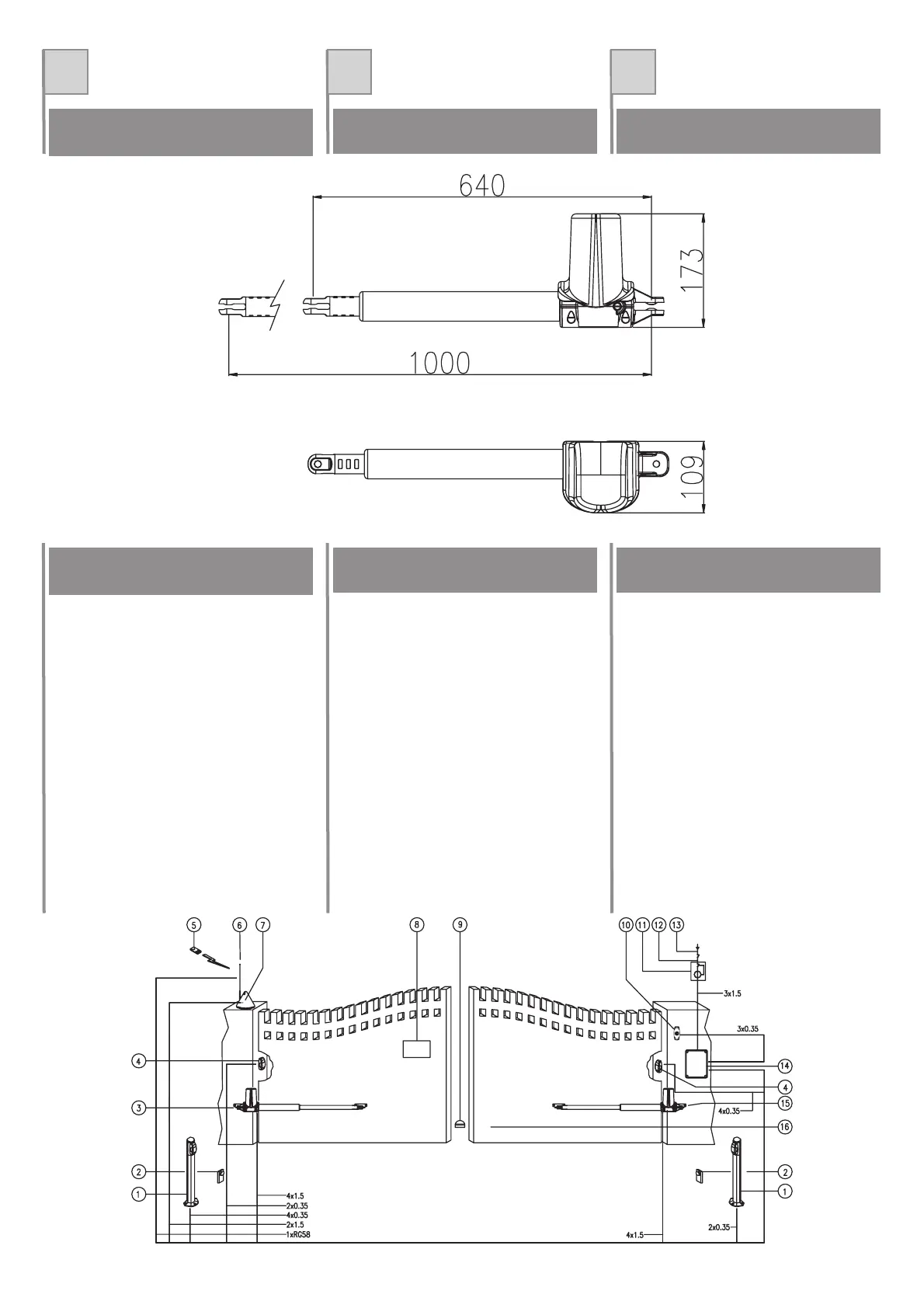
01. Coppia difotocellule acolonnina inuscita
02. Battuta d'arrestoanta inapertura
03. Pistone elettromeccanicoTAG SX
04. Coppia difotocellule inentrata
05. Radiocomando
06.Antenna
07. Lampeggiatore
08. Cartello diavvertenza
09. Battuta d'arrestoante inchiusura
10. Selettore
11. Interruttoredifferenziale
12. Interruttore generale
13. Linea d'alimentazione
14. Centralina elettronicadi comando
15. Pistone elettromeccanicoTAG DX
01.Pairedephotocellulessurcolonneàla sortie
02.Butéed'arrêtvantailen ouverture
03.PistonélectromécaniqueTAG SX
04.Pairedephotocellulesà l'entrée
05.Radiocommande
06.Antenne
07.Clignotant
08.Panneau de signalisation
09.Butéed'arrêtvantauxen fermeture
10.Sélecteur
11. Disjoncteurdifrentiel
12.Interrupteurgénéral
13.Ligned'alimentation
14.Logique électroniquede commande
15.PistonélectromécaniqueTAG DX
01. Par defotocélulas encolumna desalida
02.Topede parada dela hojaen laapertura
03. Pistón electromecánicoTAG SX (IZQ)
04. Par defotocélulas deentrada
05. Radiomando
06.Antena
07. Luz intermitente
08. Placa deadvertencia
09.Topede parada dela hojaen elcierre
10. Selector
11. Interruptordiferencial
12. Interruptor general
13. Línea dealimentación
14. Centralita electrónicade mando
15. Pistón electromecánicoTAG DX (DCHO)
QUADRO D'INSIEME VUE D'ENSEMBLE DIBUJO DE CONJUNTO
Fig. 2/Abb. 2
MISURE D'INGOMBRO (mm) DIMENSIONS D'ENCOMBREMENT
(MM)
MEDIDAS EXTERIORES MÁXIMAS
(mm)
Fig. 3/Abb. 3