EasyManua.ls Logo

Temco TLC42-4 - Planning Your Fireplace Installation; Selecting the Fireplace Location

Default Icon
17 pages
Print Icon
To Next Page IconTo Next Page
To Next Page IconTo Next Page
To Previous Page IconTo Previous Page
To Previous Page IconTo Previous Page
Loading...
PLANNING AHEAD
CHOOSING THE LOCATION FOR
YOUR FIREPLACE:
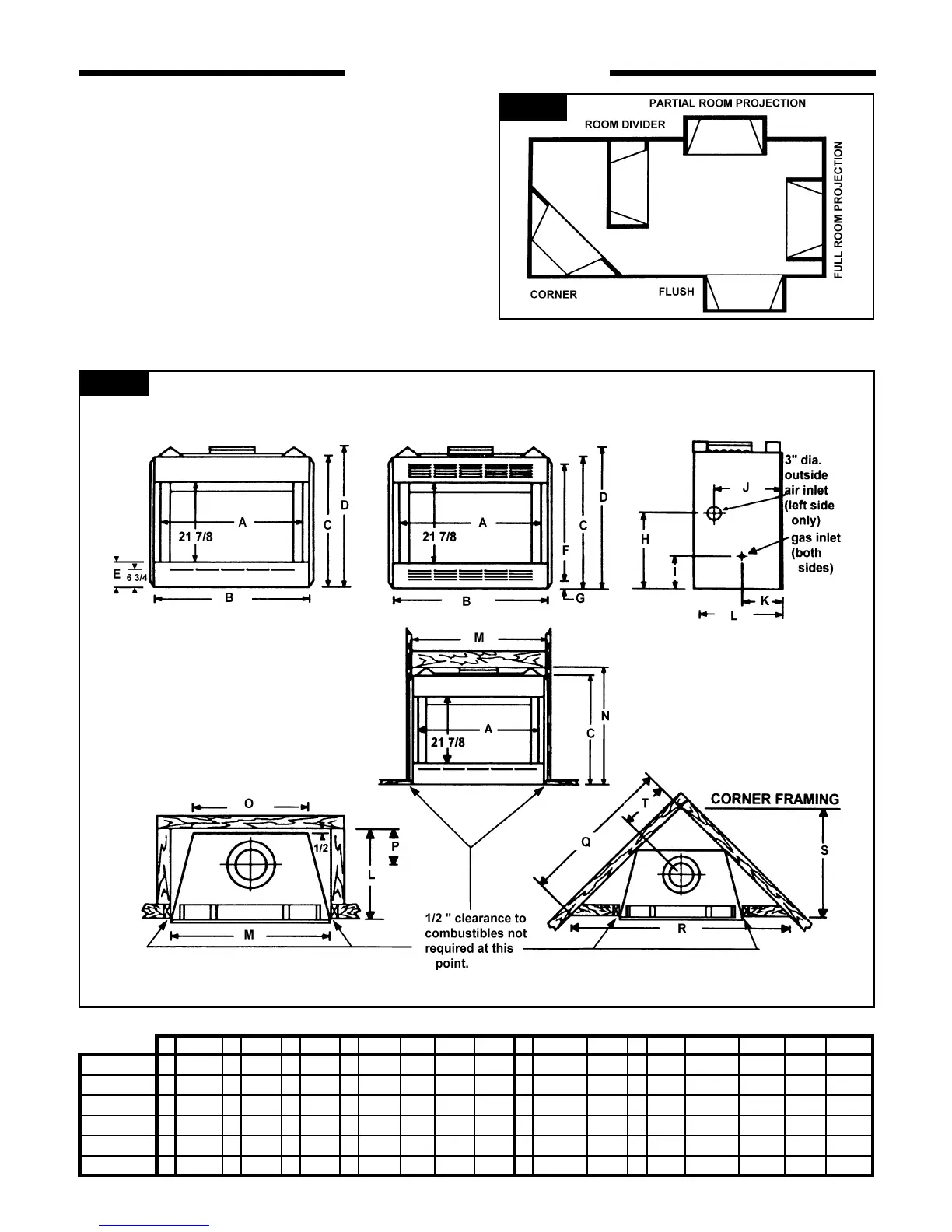
Figure 1 shows some of the many ways your fireplace may
be installed. Consider the traffic pattern in your room and
the location of doors and windows. A corner location may
be best where space is limited.
Your fireplace weighs no more than some of your fine
furniture. If the fireplace is located near a load bearing wall,
additional supports to the foundation will not be necessary.
HEAVY FACINGS SUCH AS BRICK, STONE, ETC., MAY
REQUIRE ADDITIONAL FOUNDATION SUPPORT.
ALTHOUGH THIS UNIT MAY BE INSTALLED ON COM-
BUSTIBLE SURFACES, IT MUST NOT BE INSTALLED
ON CARPET OR VINYL.
Figure 1
Figure 2
Fireplace and Framing Dimensions
A B C D E F G H I J K L M N O P Q R S T
TFC36/A36F 36 38 1/2 35 37 3/4 7 31 1/4 2 12 1/8 8 5/8 15 1/2 9 21 38 3/4 38 22 8 7/8 46 65 32 1/2 14 3/8
TLC36/A36L 36 38 1/2 35 37 3/4 7 31 1/4 2 12 1/8 8 5/8 15 1/2 9 21 38 3/4 38 22 8 7/8 46 65 32 1/2 14 3/8
TFC39/A39L 39 41 9/16 39 41 1/2 8 33 3 17 9 3/4 18 10 1/2 22 41 13/16 41 3/4 29 8 1/2 51 15/16 73 7/18 36 3/4 16 7/16
TLC42/A42F 39 41 9/16 39 41 1/2 8 33 3 17 9 3/4 18 10 1/2 22 41 13/16 41 3/4 29 8 1/2 51 15/16 73 7/18 36 3/4 16 7/16
TFC42/A42F 42 44 9/16 39 41 1/2 8 33 3 17 9 3/4 18 10 1/2 22 44 13/16 41 3/4 32 8 1/2 54 76 1/4 38 1/8 17 5/8
TLC42/A42L 42 44 9/16 39 41 1/2 8 33 3 17 9 3/4 18 10 1/2 22 44 13/16 41 3/4 32 8 1/2 54 76 1/4 38 1/8 17 5/8

Related product manuals