EasyManua.ls Logo

TempMaster ZV Series - ZVT06 through T08 Physical Dimensions

Default Icon
87 pages
Print Icon
To Next Page IconTo Next Page
To Next Page IconTo Next Page
To Previous Page IconTo Previous Page
To Previous Page IconTo Previous Page
Loading...
5567613-TIM-B-1218
12 Johnson Controls Ducted Systems
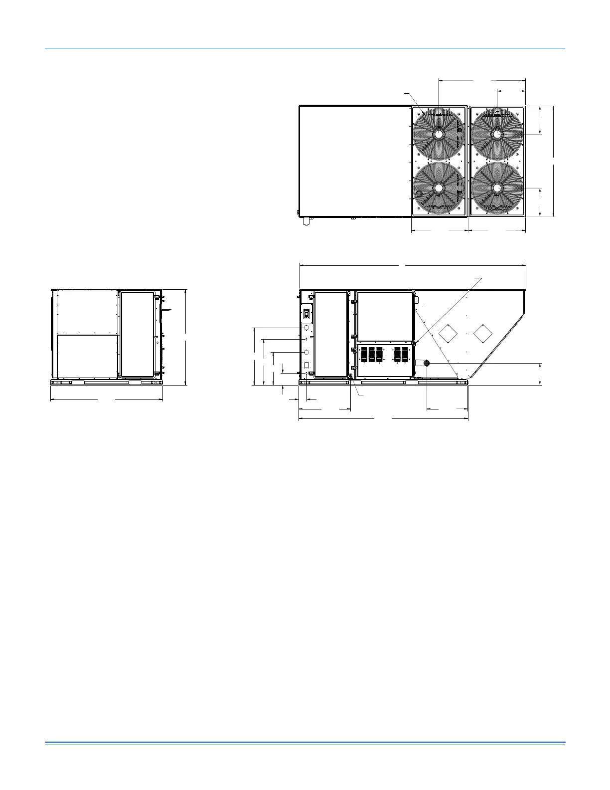
Figure 8: ZVT06 through T08 physical dimensions
LEFT
59.00
A
C
D
E
F
4.19
27.31
89.00
21.19
FRONT
SEE DETAIL B
FOR DRAIN LOCATION
11.38
SEE DETAIL A FOR GAS INLET
B
29.95 30.11
14.92
58.09
14.92
14.92
45.64
4X Ø 24.38

Table of Contents