EasyManua.ls Logo

TempMaster ZV Series - Left;End Duct Dimensions; ZVT06 through T12 Unit Left;End Duct Opening; ZVT06 through T12 Roof Curb

Default Icon
87 pages
Print Icon
To Next Page IconTo Next Page
To Next Page IconTo Next Page
To Previous Page IconTo Previous Page
To Previous Page IconTo Previous Page
Loading...
5567613-TIM-B-1218
18 Johnson Controls Ducted Systems
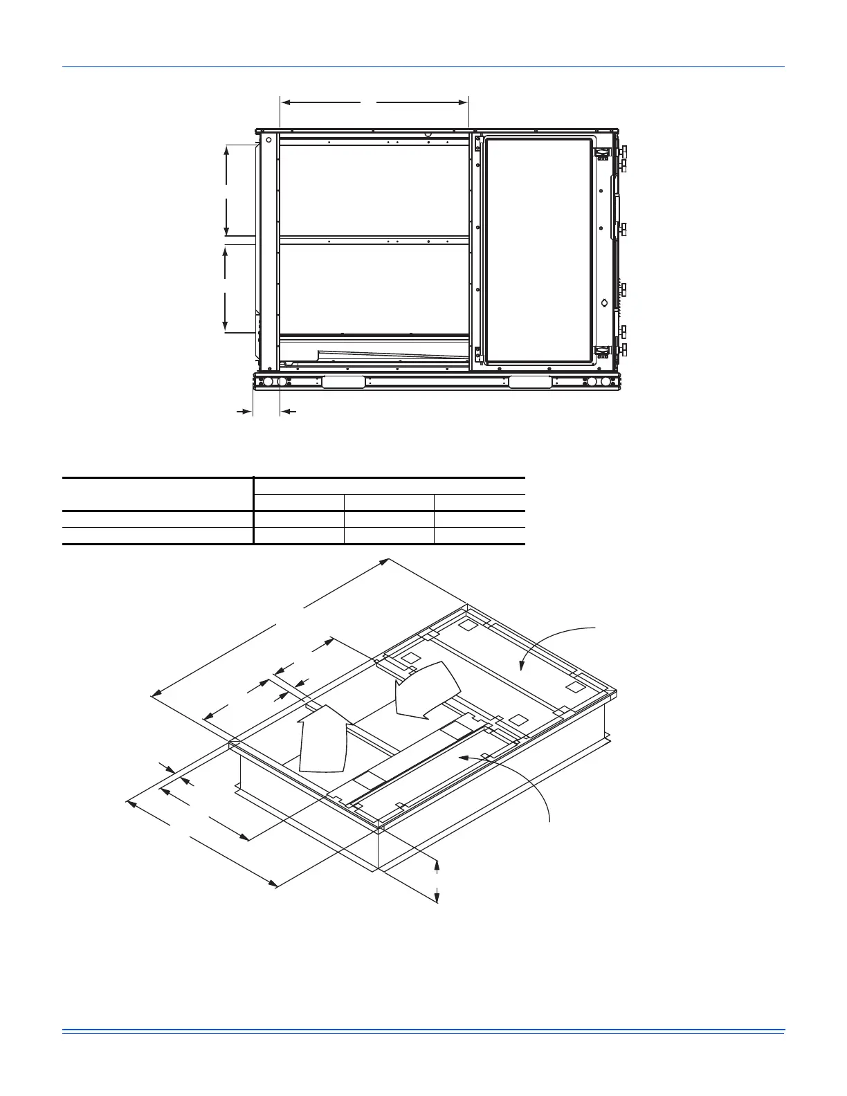
Figure 12: ZVT06 through T12 unit left/end duct opening
Figure 13: ZVT06 through T12 roof curb
Table 10: Left/end duct dimensions
Unit model number
Dimension (in.)
ABC
ZVT06, T07, T08 30.358 22.580 22.330
ZVT10, T12 30.358 22.580 22.330
4-5/16
A
C
B
8 or 14
50-1/2
30
20
20
80-5/8
6
2TYP.
INSULATED DECK UNDER
COMPRESSOR SECTION
INSULATED DECK UNDER
CONDENSER SECTION
FRONT
RIGHT
SUPPLY
RETURN

Table of Contents