EasyManua.ls Logo

TempMaster ZV Series - ZVT06 through T12 Unit Physical Dimensions; ZVT10 through T12 Physical Dimensions

Default Icon
87 pages
Print Icon
To Next Page IconTo Next Page
To Next Page IconTo Next Page
To Previous Page IconTo Previous Page
To Previous Page IconTo Previous Page
Loading...
5567613-TIM-B-1218
Johnson Controls Ducted Systems 13
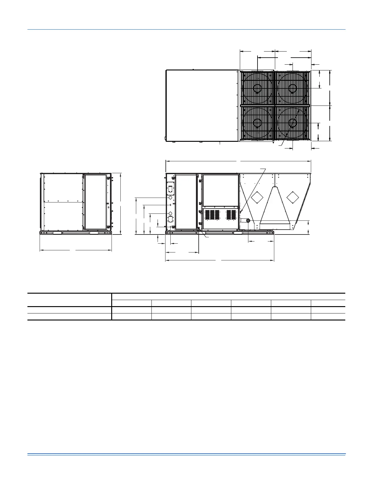
Figure 9: ZVT10 through T12 physical dimensions
Table 6: ZVT06 through T12 unit physical dimensions
Unit model number
Dimension (in.)
ABCDEF
ZVT06, ZVT07, ZVT08 42 89 22 1/8 18 3/16 15 3/16 6 3/16
ZVT10, ZVT12 50 3/4 119 1/2 30 3/16 24 3/16 17 3/16 6 3/16
15.23
29.03
14.85
29.03
14.85
15.23
28.86 29.66
44.09
Ø 24.58 TYP. 4 PL.
FRONT
See detail B for drain location
See detail A for gas inlet
C
D
E
F
B
4 3/16
27 5/16
89
21 3/16
11 3/8
A
LEFT
59

Table of Contents