EasyManua.ls Logo

Teral NX-VFC-e - Page 35

Default Icon
52 pages
Print Icon
To Next Page IconTo Next Page
To Next Page IconTo Next Page
To Previous Page IconTo Previous Page
To Previous Page IconTo Previous Page
Loading...
7-9
g Canceling the change of the setting value
To cancel the change of the setting value and return to the parameter selection screen, press the
Back
#2
Manual
switch.
h Exiting the setting mode
Press the
Setting
switch to exit the setting mode and return to the normal mode.
Also when no operation is carried out for 60 seconds in the setting mode, the system automatically
exits the setting mode and returns to the normal mode.
Note
If you press the
Setting
switch to exit the setting mode without confirming the
change, the setting change will be discarded.
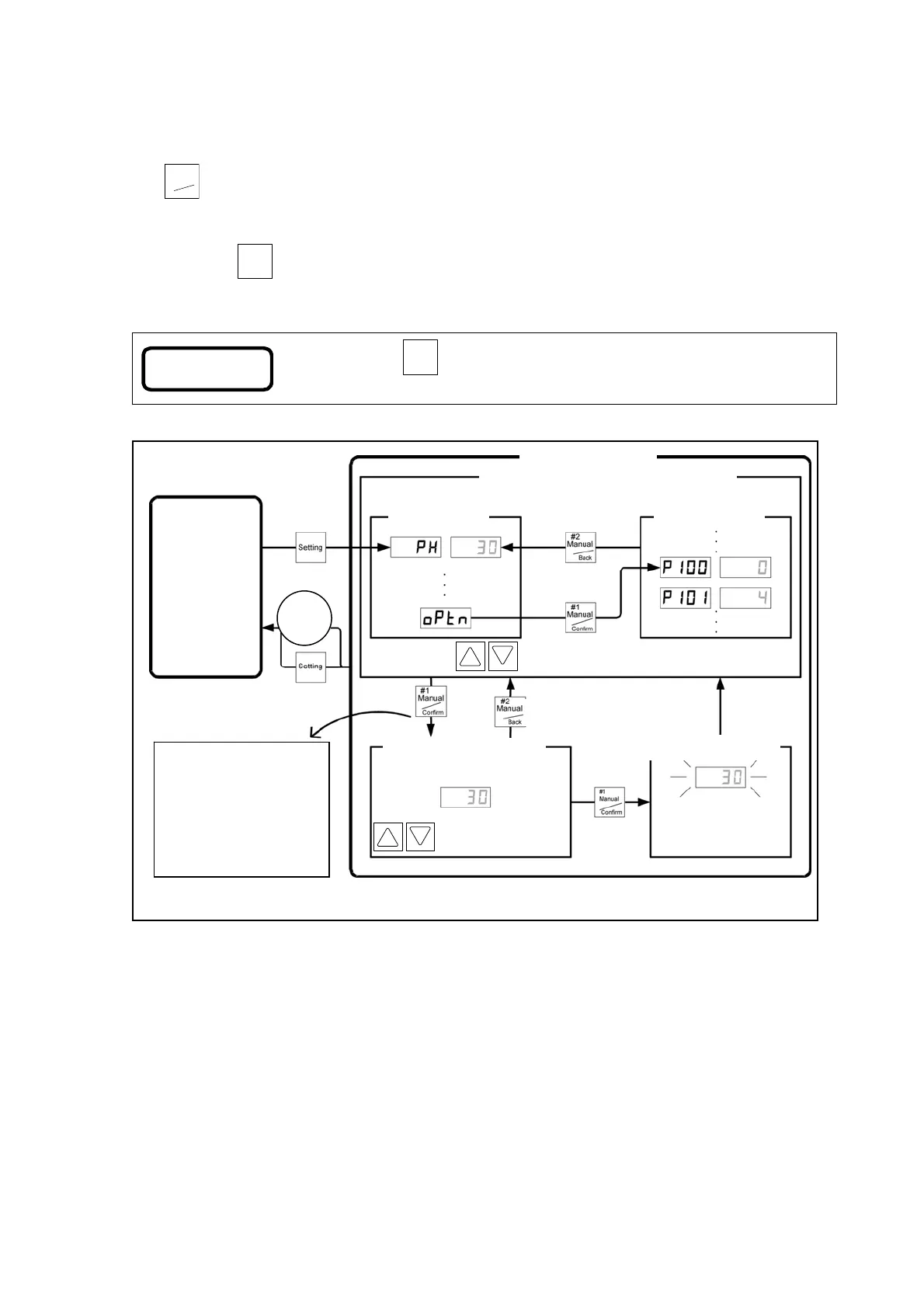
Setting mode
[Parameter selection screen]
The item set and value set are alternately displayed.
Extended parameters
Basic parameters
Select a parameter with these switches.
The change of the setting value
is canceled.
[Setting value change screen]
Only the preset value is displayed.
The change of setting value
is beingconfirmed
The display flashes three
times.
Upon beep sound, the value is
written into the memory.
Change the setting value
with these switches.
3 seconds
No
operation
for 60
seconds
Normal indication
[Setting change is prohibited]
In “Manual” or “Auto” operation
mode, pressing the
Manual/Confirm switch on the
extended parameter selection
screen does not enter the setting
value change screen and sounds
a warning buzzer, which informs
that an
y
chan
g
e is
p
rohibited.
Fig. 7-5 Procedure in the setting mode

Related product manuals