EasyManua.ls Logo

Thermo King HK-430 - Page 12

Thermo King HK-430
46 pages
Print Icon
To Next Page IconTo Next Page
To Next Page IconTo Next Page
To Previous Page IconTo Previous Page
To Previous Page IconTo Previous Page
Loading...
11
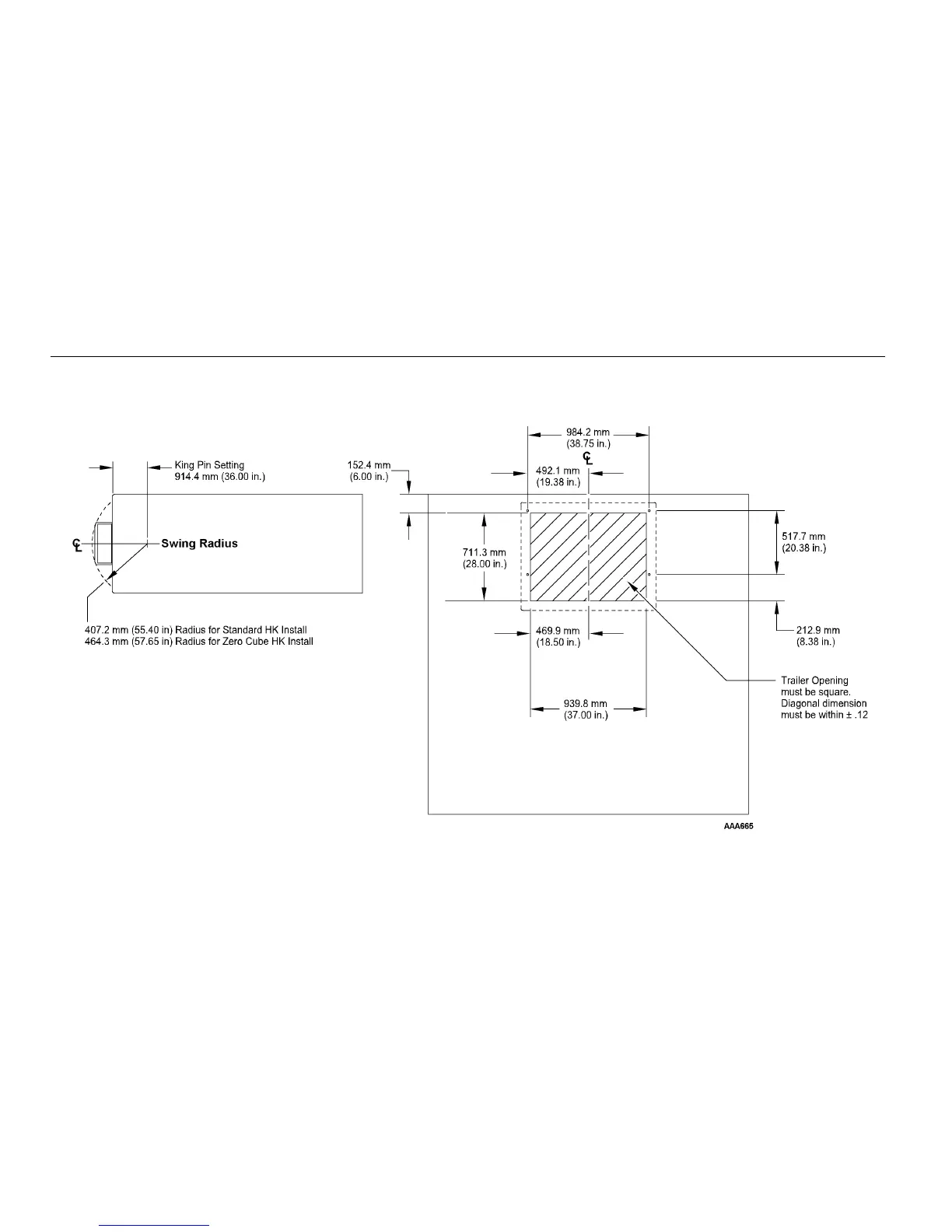
Trailer / Container Requirements

Related product manuals