EasyManua.ls Logo

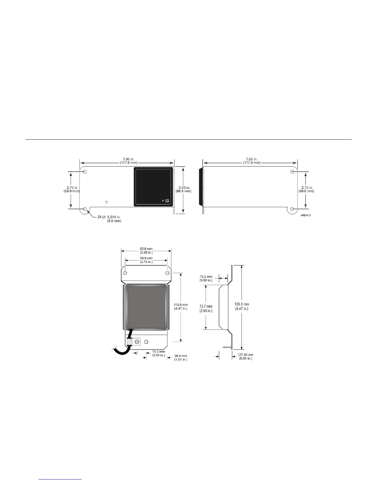
Thermo King HK-430 - Status Light Dimensions (Option)

Thermo King HK-430
46 pages
Print Icon
To Next Page IconTo Next Page
To Next Page IconTo Next Page
To Previous Page IconTo Previous Page
To Previous Page IconTo Previous Page
Loading...
16
Status Light Dimensions (Option)
Corner Mount Version
Surface Mount Version

Related product manuals