EasyManua.ls Logo

Thermo King HK-430 - Page 26

Thermo King HK-430
46 pages
Print Icon
To Next Page IconTo Next Page
To Next Page IconTo Next Page
To Previous Page IconTo Previous Page
To Previous Page IconTo Previous Page
Loading...
25
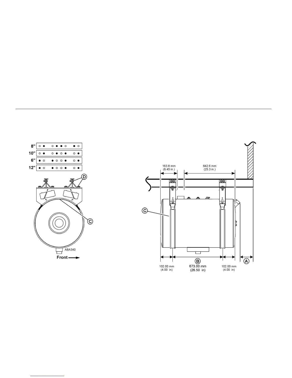
Installing the Fuel Tank - Aluminum, 22'' dia. 30 & 50 Gallon - (Option)
Standard crossmember spacing shown. For other crossmember spacing, refer to TK-54238-2-IM.
Non-standard crossmember spacing of 9'', 15'' and 16'' also requires Kit 701658 (90-399)
Tank can be mounted on
either side of trailer.
NOTE: Location of mounting holes may change if
other trailer options are added.
Cross Member Spacing
50 Gallon Fuel Tank Shown

Related product manuals