EasyManua.ls Logo

Thor Kitchen LRG3601U - 8. Electrical Grounding Instructions; 9. Connect Range to Gas Supply

Default Icon
59 pages
Print Icon
To Next Page IconTo Next Page
To Next Page IconTo Next Page
To Previous Page IconTo Previous Page
To Previous Page IconTo Previous Page
Loading...
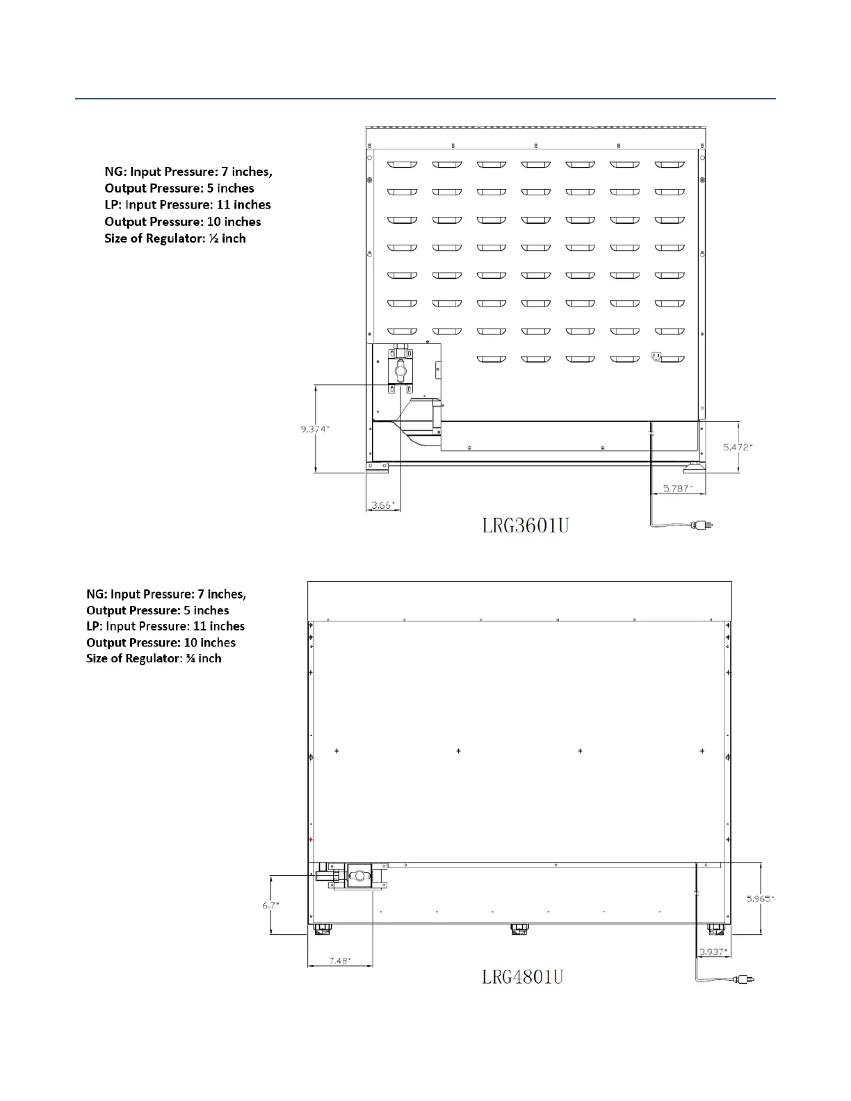
Dimension and Clearance
24
`
LRG3601U
LRG4801U

Table of Contents

Other manuals for Thor Kitchen LRG3601U

Related product manuals