EasyManua.ls Logo

Thor Kitchen LRG4807U - Page 29

Thor Kitchen LRG4807U
59 pages
Print Icon
To Next Page IconTo Next Page
To Next Page IconTo Next Page
To Previous Page IconTo Previous Page
To Previous Page IconTo Previous Page
Loading...
Dimension and Clearance
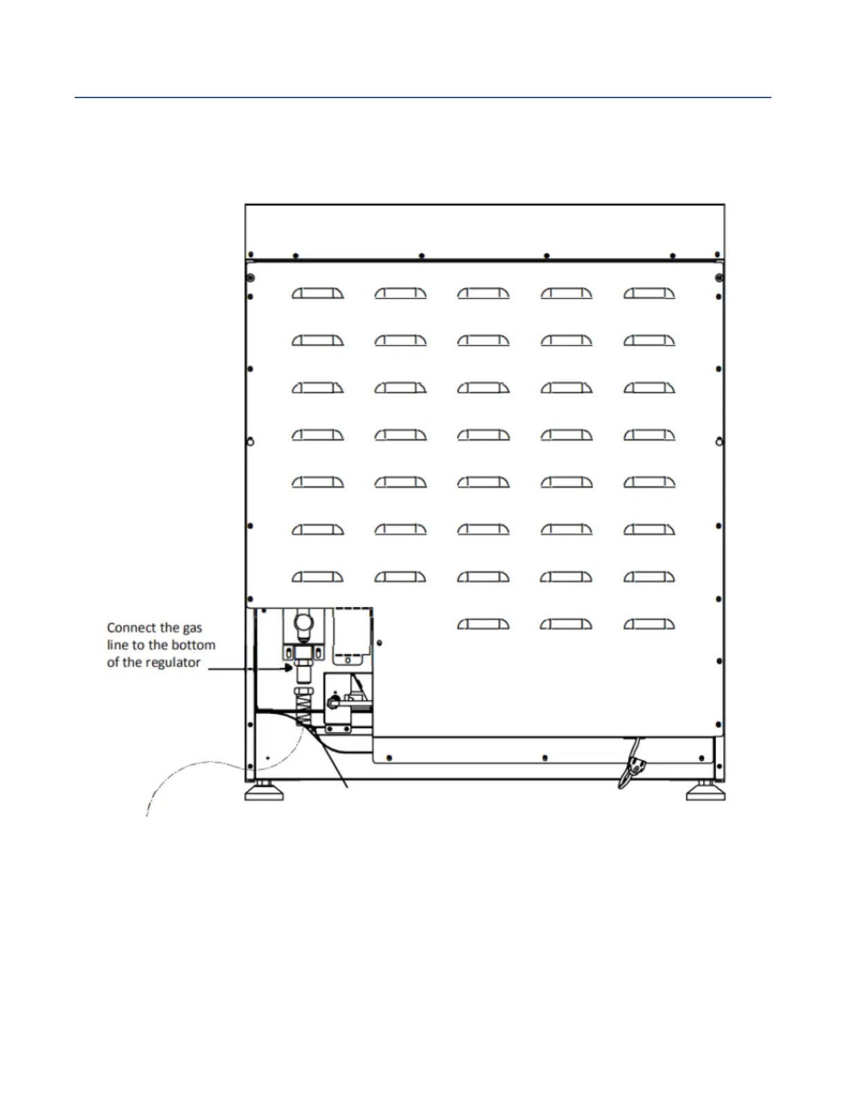
Gas Line Connection
27

Table of Contents

Related product manuals