EasyManua.ls Logo

Tiger JD 5520 - Page 106

Tiger JD 5520
222 pages
Print Icon
To Next Page IconTo Next Page
To Next Page IconTo Next Page
To Previous Page IconTo Previous Page
To Previous Page IconTo Previous Page
Loading...
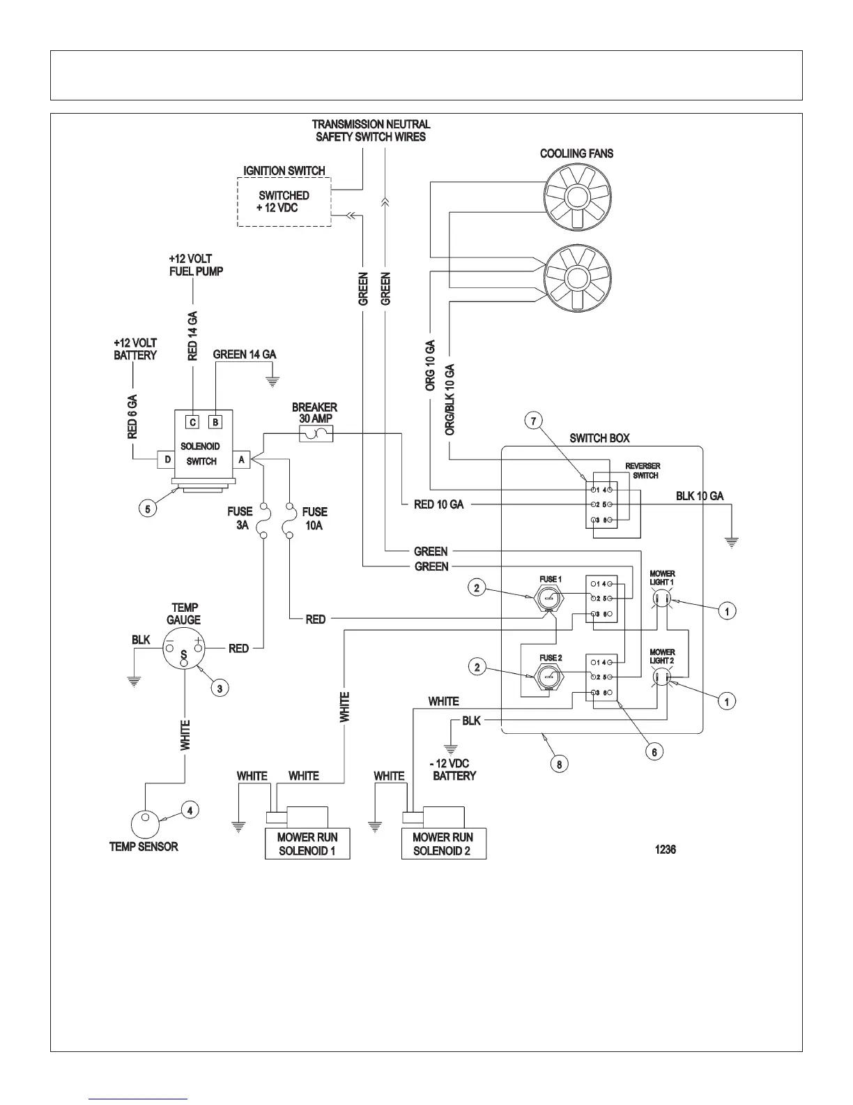
Parts Section 5-24
SOLENOID VALVE SWITCH AND WIRING
12-12-02
ITEM PART NO. QTY. DESCRIPTION
34522 AVAIL SWITCH BOX ASY (COMPLETE)
1 6T3923 1 INDICATOR LIGHT
2 6T3924 1 FUSE HOLDER
3 6T3934 OPT. TEMPERATURE GAUGE
4 6T3931 OPT. TEMPERATURE SENSOR
5 6T3927 1 CONTINUOUS SOLENOID SWITCH
6 PT3905A 1 TOGGLE SWITCH, MOWER RUN
7 30260 1 TOGGLE SWITCH, REVERSER SWITCH
8 34325 1 SWITCH BOX