EasyManua.ls Logo

Tiger JOHN DEERE 5083E - SOLENOID SWITCH BOX AND WIRING

Tiger JOHN DEERE 5083E
240 pages
Print Icon
To Next Page IconTo Next Page
To Next Page IconTo Next Page
To Previous Page IconTo Previous Page
To Previous Page IconTo Previous Page
Loading...
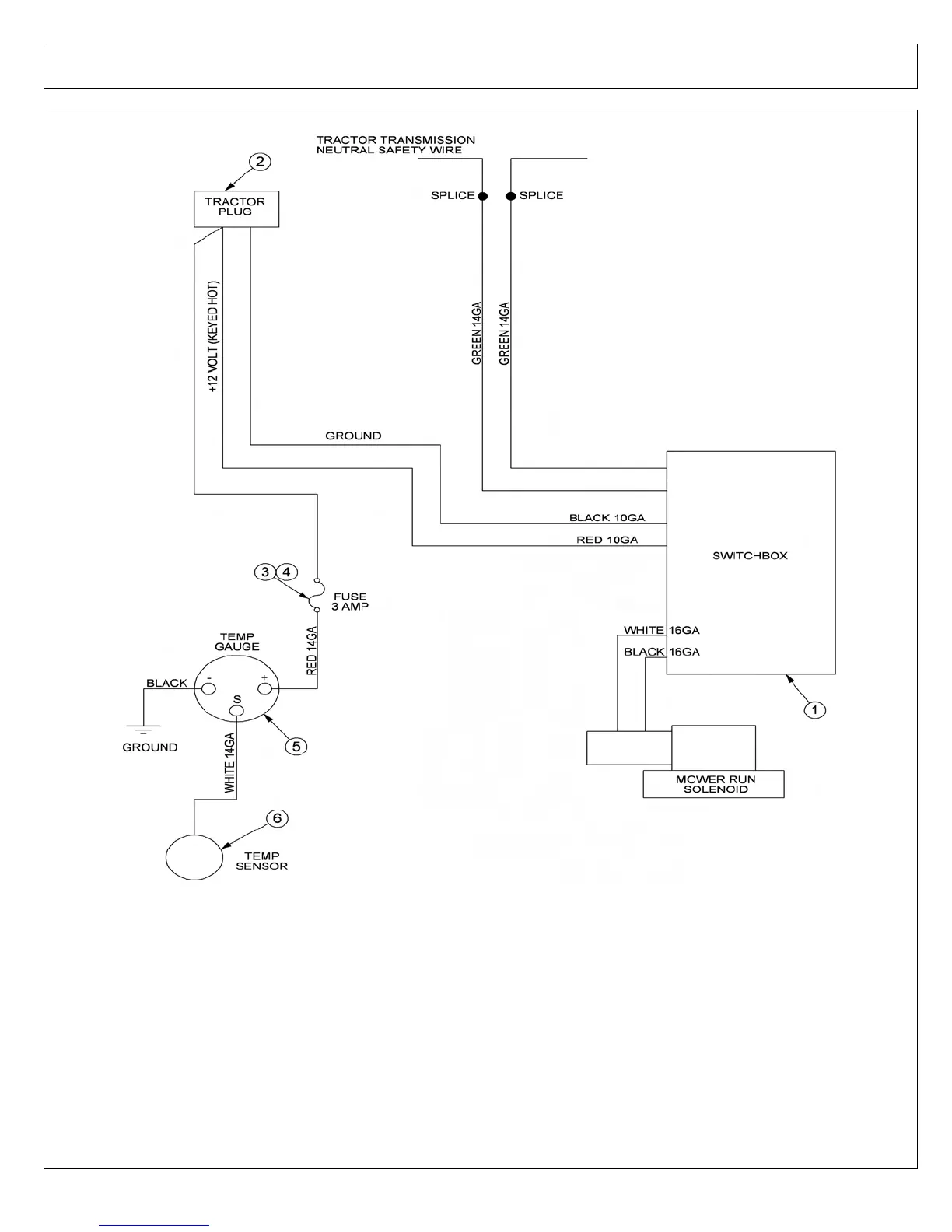
SOLENOID SWITCH BOX AND WIRING
ITEM PART NO. QTY. DESCRIPTION
1 ------ - SWITCH BOX
2 RE37651 1 PLUG,AUX PWR
3 24204 - FUSE HOLDER,IN-LINE (OPTION)
4 6T3965 - FUSE,3AMP (OPTION)
5 6T3934 - TEMPERATURE GAUGE (OPTION)
6 6T3931 - TEMPERATURE SENSOR (OPTION)
©2011 Alamo Group Inc. Parts Section 6-49
COMMON LYNX

Table of Contents

Related product manuals