EasyManua.ls Logo

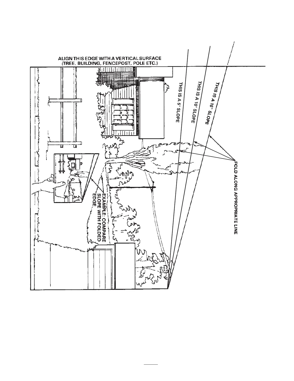
Toro 72051 - Slope Chart

Toro 72051
40 pages
Print Icon
To Next Page IconTo Next Page
To Next Page IconTo Next Page
To Previous Page IconTo Previous Page
To Previous Page IconTo Previous Page
Loading...
7
Slope Chart

Related product manuals