EasyManua.ls Logo

Toro Workman 1100 - Page 176

Toro Workman 1100
194 pages
Print Icon
To Next Page IconTo Next Page
To Next Page IconTo Next Page
To Previous Page IconTo Previous Page
To Previous Page IconTo Previous Page
Loading...
Page 8 – 4
(Rev. B)
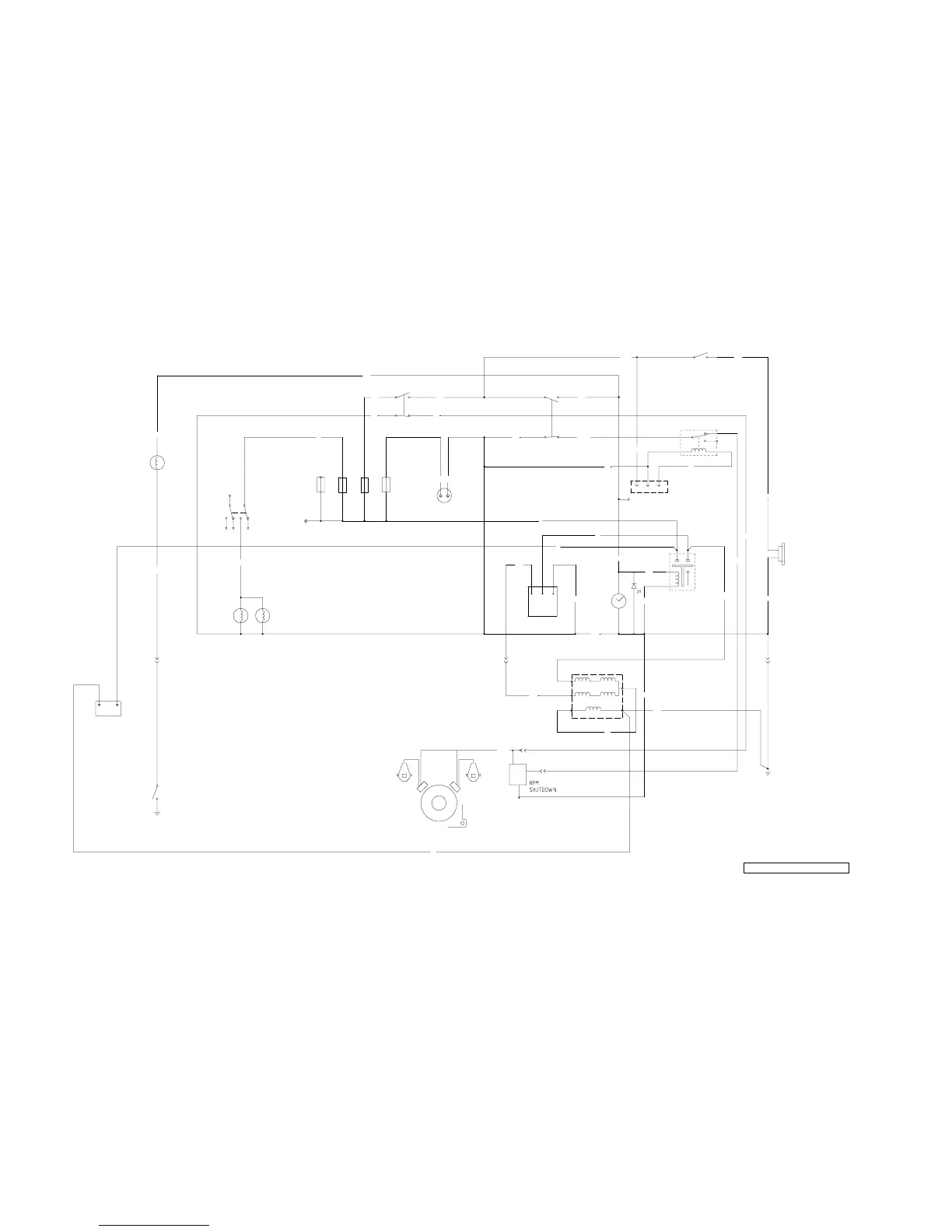
Electrical Schematic
Workman 2100
Solenoid is shown de–energized
P3–3
(+)(–)
W/BU
OR
HEAD LIGHTS
PRESSURE
ENGINE OIL
10 A
F4
OPTIONAL FUSES
LOW OIL
PRESSURE
BU
Y
5
2
3
6
4
1
LIGHT
SWITCH
POWER POINT
W BK
F2 F3
10 A
F1
10 A
PK
BU
1
M–
BK BN
2
(OFF)
KEY SWITCH
M+
VIO
1
BK
4
2
3
BU
VIO
BN/W
(PEDAL NOT PUSHED IN)
ACCELERATOR SWITCH
R
BK
VIO
R
A
J16
GY
OR
30
85
87
86
87a
BN
CB
P16
RELAY
2
GY
REVERSE SWITCH
.
1
(IN FORWARD)
P3–2
BK
IGNITION
MODULES
MAG
SPARK PLUG
(–)
HR
(+)
BK
BK
HOUR
METER
BU
REGULATOR
VOLTAGE
R
GN
F2
DF
A2
STARTER/GENERATOR
BK
GN
P3–4
armature
fields
A1
F1
BK
SOLENOID,STSP
(+)
(–)
BACKUP
ALARM
BK
R
P3–1
ENGINE / FRAME GROUND
SPARK PLUG
BN/W
BK
BU
BK
(Serial Number Under 220000000)

Table of Contents

Other manuals for Toro Workman 1100

Related product manuals