EasyManua.ls Logo

Toro Workman 1100 - Circuit Drawings

Toro Workman 1100
194 pages
Print Icon
To Next Page IconTo Next Page
To Next Page IconTo Next Page
To Previous Page IconTo Previous Page
To Previous Page IconTo Previous Page
Loading...
Page 8 – 6
(Rev. B)
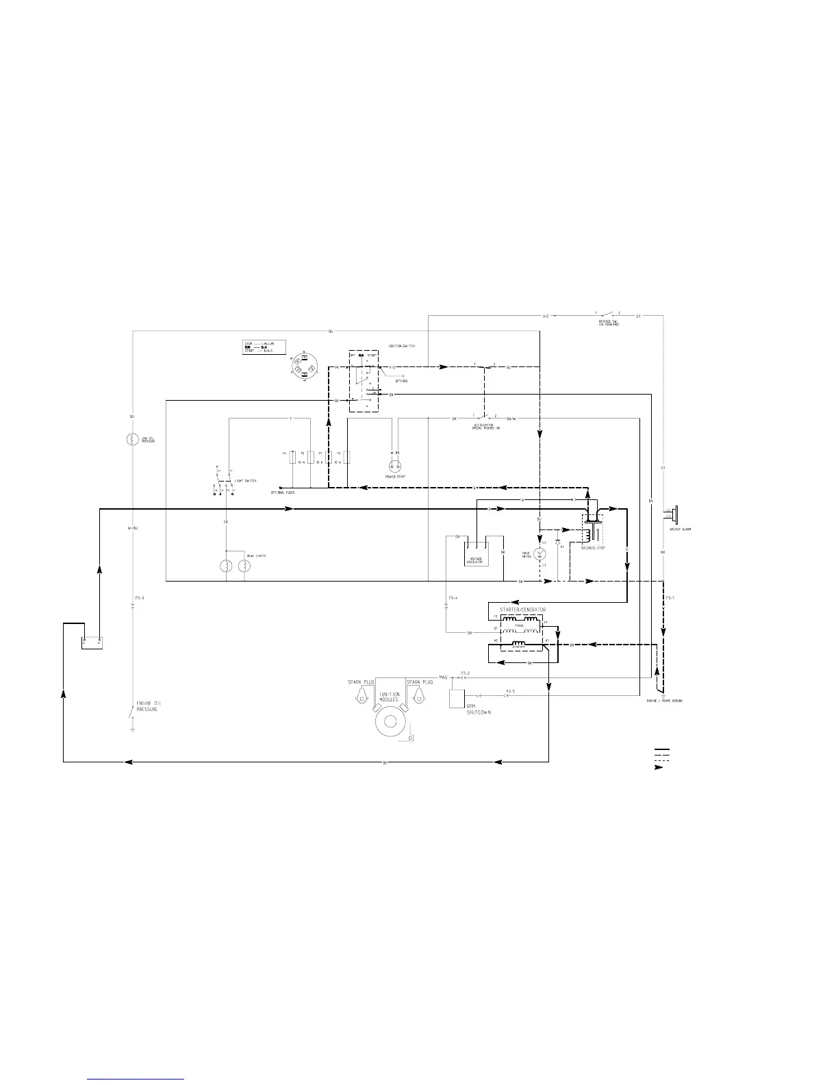
Start Circuits
Power Current
Control Current
Indication Current
Current Direction
(Workman 2100 Schematic Shown)

Table of Contents

Other manuals for Toro Workman 1100

Related product manuals