EasyManua.ls Logo

Toshiba RAS-10YAH-E - Outdoor Unit

Toshiba RAS-10YAH-E
67 pages
Print Icon
To Next Page IconTo Next Page
To Next Page IconTo Next Page
To Previous Page IconTo Previous Page
To Previous Page IconTo Previous Page
Loading...
7
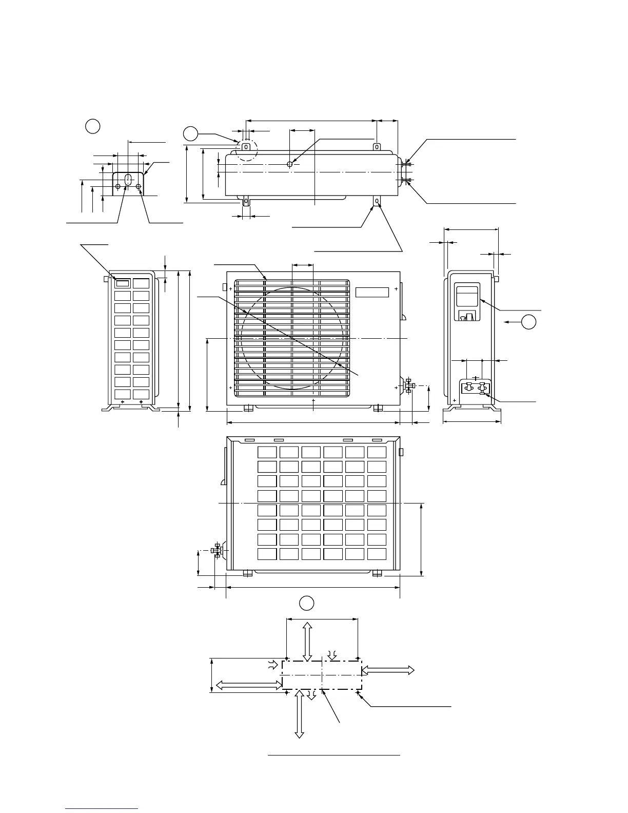
2-2. Outdoor Unit
RAS-10YAH-E, RAS-10YAH-ES
600 85
36
111
Ø25 Drain hole
50
30
216
230
8-Ø6 Holes
(For fixing the outdoor unit)
4-Ø11x14 Long holes
(For anchor bolt Ø8-Ø10)
Gas side (flare Ø9,52)
Liquid side (flare Ø6,35)
111
A
600
R10
50
36
25
216
230
Ø11x14 Hole
Ø6 Hole
Handle
11
525
530
5
268
Fan guard
Ø420
TOSHIBA
770 59
89
200
11
12
Electric
parts cover
Z
54 62
Service
port
250
Z
View
600
45 or more
Inlet port
600 or more
(Minimum distance
of the wall)
4-Ø11x14 Long holes
(For anchor bolt Ø8-Ø10)
400 or more
Outlet
port
Center
port
230
100 or more
Inlet port
Visible outline
of the product
A
Detail Drawing
Mounting dimension of anchor bolt
268
770
59
89

Table of Contents

Related product manuals