EasyManua.ls Logo

Toshiba RAS-16NAV-E - Indoor Unit Wiring Diagram (13 NKV)

Toshiba RAS-16NAV-E
96 pages
Print Icon
To Next Page IconTo Next Page
To Next Page IconTo Next Page
To Previous Page IconTo Previous Page
To Previous Page IconTo Previous Page
Loading...
– 16
FILE NO. SVM-05027
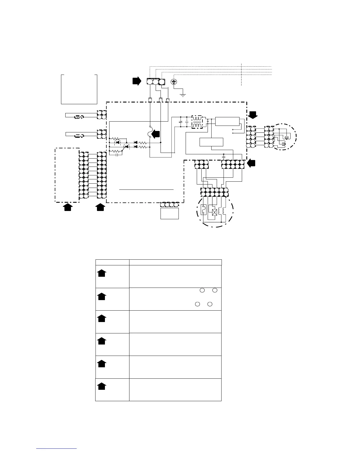
4. WIRING DIAGRAM
4-1. Indoor Unit (For 13NKV)
Refer to the service data for the detailed failure
diagnosis.
Simple Check for Failure Diagnosis
Check Item
Diagnosis Result
OPERATION
INDICATOR
TERMINAL
BLOCK
FUSE
3.15A
DC5V
DC12V
Check to see if the OPERATION indicator goes on
and off when the main switch or breaker is turned on.
(Check the primary and secondary voltage of the
transformer.)
Check the power supply voltage between and .
(Refer to the name plate.)
(Check the primary and secondary voltage of the
transformer.)
Check the fluctuating voltage between and .
(15~60VDC)
Check to see if the fuse blows out.
(Check the R04 of the varistor.)
Check the voltage at the No.4 pin on CN13 connector
of the infrared receiver.
(Check the transformer and the power supply circuit
of the rated voltage.)
Check the voltage at the white lead of the louver
motor.
(Check the transformer and the power supply circuit
of the rated voltage.)
2
1
3
4
5
Check the voltage at the No.1 pin on CN10
connector and CN24.
(Check the F01)
6
(AC 220~240V)
1
2
2
3
MCC-861
BLK
HA
JEM-A
CN21
TERMINAL
BLOCK
LOUVER MOTOR
FUSE
T3.15A
4
3
2
1
CN08
CN24
CN13
(W HI)
CN25
(WHI)
INFRARED RAYS
RECEIVING AND
INDICATING PARTS
1
3
4
5
6
7
8
11
2
1
2
3
4
5
6
7
8
9
10
11
10
9
1
2
3
4
5
6
7
8
9
10
11
1
2
3
4
5
6
7
8
9
10
11
1
2
1
2
1
2
1
2
1
2
3
4
5
1
2
3
4
5
1
2
3
4
5
1
2
3
4
5
1
3
4
2
1
MCC-861
BLK
THERMO SENSOR
(TA)
BLU
BLU
BLU
BLU
BLU
BLU
BLU
BLU
BLU
BLU
WHI
CN03
(W HI)
CN01
(BLU)
CN07
(WHI)
WHI
YEL
YEL
YEL
YEL
F01
BLK
BLK
250VAC
CN23
HEAT EXCHANGER
SENSOR
(TC)
5
BLK W HI RED
COLOR INDICATION
BRW
RED
WHI
YEL
BLU
BLK
GRY
PNK
ORN
GRN&YEL
GRN
:
:
:
:
:
:
:
:
:
:
:
BROWN
RED
WHITE
YELLOW
BLUE
BLACK
GRAY
PINK
ORANGE
GREEN & YELLOW
GREEN
INDOOR
UNIT
OUTDOOR
UNIT
MAIN P.C. BOARD
WP-004
LINE
FILTER
Power
supply circuit
+12 VDC
+5 VDC
Fan Motor
Drive circuit
AC FAN MOTOR
150°C
6
1
2
3
4
5
6
1
2
3
4
5
1
2
3
1
2
3
5
3
1
5
3
1
YEL
GRY
BRW
WHI
BLK
RED
CN11 CN10
6
R04

Table of Contents

Related product manuals