EasyManua.ls Logo

Toshiba RAS-M16U2DVG-E - Construction Views

Toshiba RAS-M16U2DVG-E
107 pages
Print Icon
To Next Page IconTo Next Page
To Next Page IconTo Next Page
To Previous Page IconTo Previous Page
To Previous Page IconTo Previous Page
Loading...
– 24 –
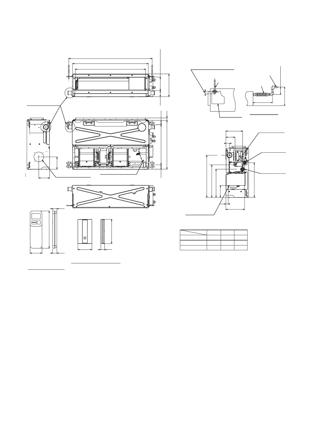
4. CONSTRUCTION VIEWS
Hanging bolt pitch A
Unit external dimension B
56
125(Outside)
Unit external
dimension
210
25 or less
(Only the position of a
check cover.)
40
22
100
113
40
Hanging bolt pitch 370
Unit external dimension 450
Electrical control box
90 knockout hole
(For air taking-in air)
Hanging
bolt
Check cover
Flexible drain hose
(Accessory)
1/100 or more
downward
C (Outside)
19.7
18
57.5
120
172
WIRELESS REMOTE
CONTROLLER
SIGNAL RECEIVING UNIT
70 18.5
Drain-up piping
177 or less
300 or less
350 or less
388
300
260
110
155
85
35
37
173
320
Refrigerant pipe
connecting port
(Liquid side)
Drain pipe
connecting port
Refrigerant pipe
connecting port
(Gas side)
A
B
C
Wires
drawing-out port
07,13 type 770
700
650
970
900 850
16 type
Some models have
no drain guaid here.
1,170 1,100 1,050
22,24 type

Other manuals for Toshiba RAS-M16U2DVG-E

Related product manuals