EasyManua.ls Logo

Toshiba TCB-IFDA1GUL - Wiring Diagram Overview; DX-Controller RA Wiring Diagram

Toshiba TCB-IFDA1GUL
26 pages
To Next Page IconTo Next Page
To Next Page IconTo Next Page
To Previous Page IconTo Previous Page
To Previous Page IconTo Previous Page
Loading...
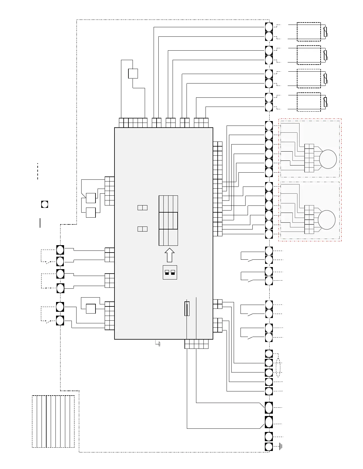
TCB-IFDA1GUL RA Control Type Wiring Diagram Rev3
WHI
:
3. Please refer to the installation manual for wiring instructions.
WHITE
BRN
:
BROWN
DX-Controller (RA control type) Wiring Diagram : TCB-IFDA1GUL
1. The dashed lines indicate wiring on site.
BLU
:
BLUE
2. indicate terminal blocks and the numbers within them are the terminal numbers
RED
:
RED
GRN
:
GREEN
External
ON/OFF input
Rating 12VDC
Safety contact
(Factory set : Closed)
Rating 12VDC
Fan Error Input
(Normally Open)
Rating 12VDC
Notes
ORG
:
ORANGE
KP8
KP9
A2
A2
YEL
4. The DX-Interface can be configured as a VRF system.
5. At shipment C5 and C6 are short-circuited. Remove it when you use the terminal.
(Classification of control against electric shock : CLASS I )
A1
RED
WHI
RED
BLU
:
YELLOW
YEL/WHI
:
YELLOW/WHITE
RED
A1
A1
BLU
1
3
1
3
BLU
WHI
A2
RED
1
2
5
6
KP3
1
2
3
4
5
6
1
2
3
1
2
3
1
2
3
MCC-1570
3
3
CN61
CN34
CN80
CN82
YEL
RED
GRN
BLU
KP2
4
4
A2
A1
CN60
1
1
2
2
6
6
CN71
1
5
5
WHI
WHI
1
2
CN72
WHI
CN104
1
1
YEL
2
2
OFF
ON
SW501
SW501_2
1
4
CN100
2
5
5
BRN
BLK
3
3
1
3
3
CN41
CN40
CN510
WHI
18
19
YEL
20
3
14
15
16
17
18
20
19
8
17
6
7
8
9
10
5
6
7
9
ORN
BLU
RED
BRN
WHI
YEL
ORN
BLU
BLK
2
2.5m
2.5m
2.5m
2.5m
BLU
BLK
BLU
RED
BRN
WHI
YEL
ORN
TC1 Sensor
TCJ Sensor
TC2 Sensor
TA Sensor
BLK
BLK
BLK
BLK
BLK
BLK
BLK
TA Sensor
TC1 Sensor
TCJ Sensor
Temp.
(8ft)
(8ft)
(8ft)
Temp.
Temp.
Temp.
(8ft)
Power supply
208/230VAC
60Hz 1Ph
11
14
WHI
Thermo on
(NC)
Digital
Output
12VDC
TC2 Sensor
4
4
5
5
BLU
RED
BLK
RED
BRN
WHI
YEL
ORN
Sub Bus
A / B
Main Bus
U1 / U2
Fan Motor
Active
Digital
Output
250VAC 6A
6
6
1
2
RED
2
System
RA control
VRF
OFF
OFF
VRF
CN102
1
1
1
BLK
2
2
CN101
1
0-10V
SW501_1
5
6
5
6
Alarm
Active
Digital
Output
250VAC 6A
Secondary
Heating
Output
12VDC
14
14
[NOTE 1] Low-Voltage Wiring : CLASS 2
1
1
2
1
2
2
3
3
YEL
14
4
11
11
1
4
4
5
6
3
3
1
2
RED
BRN
5
6
1
10
11
12
13
BLK
1
2
3
4
1
11
11
12
13
COLOUR IDENTIFICATION
ATTENTION: LE CÂBLAGE CONNECTÉ DANS CETTE BOÎTE DOIT ÊTRE ÉVALUÉ AU MOINS 300V.
[NOTE 2] Use Copper Conductors Only
ORG
2
4
1
2
3
4
BRN
ORG
FUSE 6.3A
CN67
3
1
2
1
2
3
1
2
RED
CAUTION : WIRING CONNECTED IN THIS BOX MUST BE RATED AT LEAST 300V.
WHI
BLK
BLK
BLU
BLU
RED
BLK
BLK
BLK
BLK
BLK
BLK
BLK
BLK
BLK
BLU
BLU
2
WHI
14
15
16
5
G
PMV
1
E
B
A
U2
U1
ON
1
2
G
CHK
DISP
PMV
2
L1
L2
C2
C1
L01
RED
L02
BRN
L03
WHI
L04
YEL
L05
ORN
L06
BLU
L07
RED
L08
BRN
L09
WHI
L10
YEL
L11
ORN
L12
BUL
TC1
TC1
TCJ
TCJ
TC2
TC2
TA TA
D1
D2
KP2
D17
D18
KP9
C8
C7
C6
C5
D5
D6
KP3
D20
KP8
P01
D19
Dx-PMV kit
Dx-PMV kit

Related product manuals