EasyManua.ls Logo

Trane Technologies TAMXB0A24V21DA - Refrigerant Line Brazing; Brazing Procedures and Safety

Default Icon
52 pages
Print Icon
To Next Page IconTo Next Page
To Next Page IconTo Next Page
To Previous Page IconTo Previous Page
To Previous Page IconTo Previous Page
Loading...
24
18-GJ89D1-1E-EN
Refrigerant Line Brazing
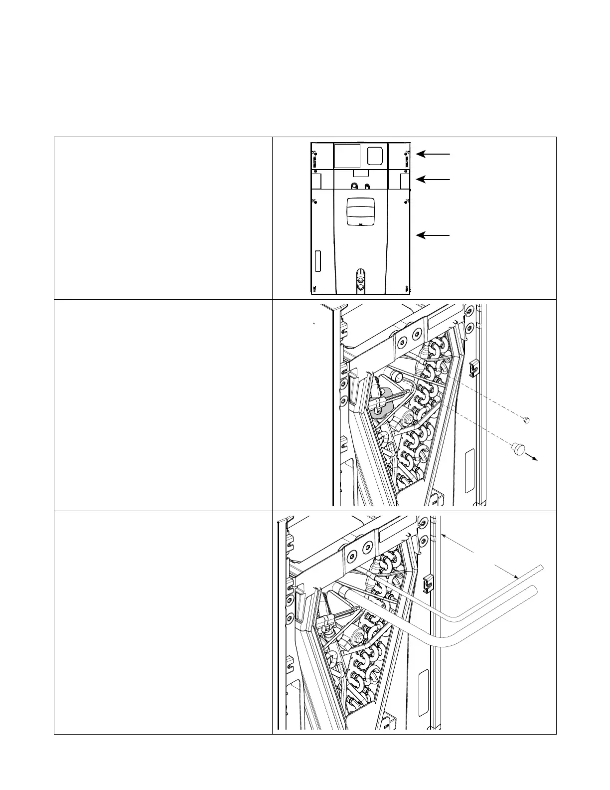
Table 13. Braze the Refrigerant Lines
1. Remove Heater, Coil, and Line Set panels.
Heater
Panel
Line Set
Panel
Coil
Panel
1
2
3
Important: Do NOT unseal coil refrigerant connection stubs
until ready to make connections.
Important: Heat Sensitive Sensors. The Gas Temperature
Sensor must be removed or a wet rag must be
wrapped around the suction line between the
Sensor and the braze joint to protect it from
failure due to overheating.
2. Remove the sealing plug from the indoor coil suction
line.
3. Remove the sealing plug from the indoor coil liquid line.
This coil is pressurized with 8–12 psig of dry air. Do not
stand directly in front of the coil connections when removing
sealing plugs.
4. Connect, but do not braze field line set to indoor coil.
a. Allow a minimum of 1.5 inches of refrigerant line set
before using an elbow coupling.
Important: Service access to the auxiliary heater must
remain unobstructed.
1.5” MIN

Related product manuals