EasyManua.ls Logo

Trane 2MCC05-C - Page 64

Trane 2MCC05-C
80 pages
Print Icon
To Next Page IconTo Next Page
To Next Page IconTo Next Page
To Previous Page IconTo Previous Page
To Previous Page IconTo Previous Page
Loading...
64 MS-SVN056C-EN
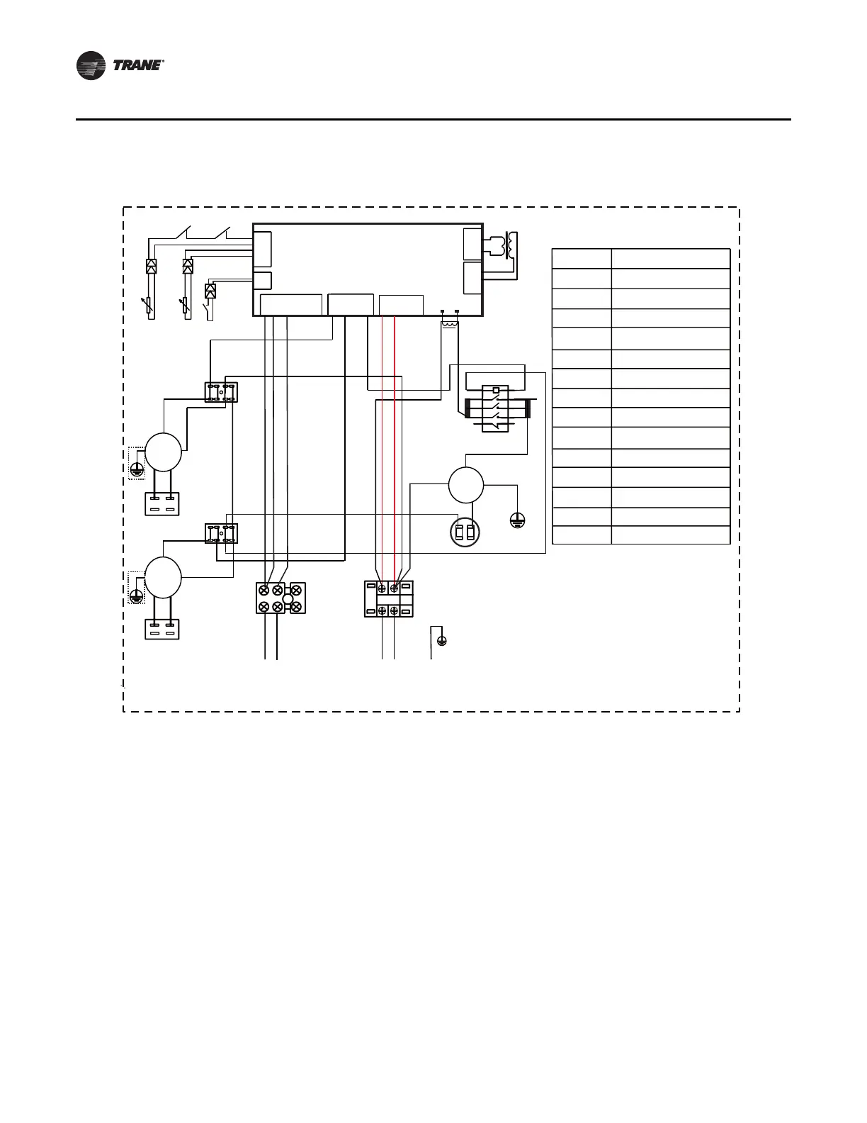
Wiring Diagrams
Outdoor Unit - Cooling Only - 4TTK05-D (48K) - 1 Phase
& N1
POWER INPUT
WHITE
BLUE
BLACK
WHITE
RED
RED
YELLOW
RED
BLACK
BLACK
BROWN
RED
YELLOW
WHITE
BLUE
CT1
H-RPO
K1
BLACK
ORANGE
XT1
XT2
XT6
L
N
S
Y/G
COMP
R
21
C
22
CN100-208
P.C.BOARD SOCKETS
TEMP. PROTECT SWITCH
PIPE TEMP. SENSOR
TRANSFORMER
T5
K1
CONNECTOR
HIGH/LOW PRESSURE SWITCH
AC CONTACTOR
CONNECTORS
RT3
XP7-9
H/L -PRO
XT5-6
KM1
MAIN CONTROL BOARD
RT3
CN206
CN201
XT5
XP8
XS8
CN100
CN208
CN200
KM1
A1
3
1
5
A2
2
4
6
CN203
T5
WIRING DIAGRAM
FAN CAP.
COMPRESSOR
OUTDOOR FAN
PART NAME
COMP
CODE
CONNECTORS
XS7-9
FAN
UP
CAP3
FAN UP
FAN DOWN
CAP3 CAP4
RT4
XP9
XS9
FAN
DOWN
CAP4
Y/G
(OUTDOOR UNIT)
BLUE
BLUE
CT1
CURRENT DETECTOR
RED
BLACK
WHITE
&1
/532
;3
;6
24V~
RED
CAP2
CAP2
COMPRESSOR CAP.
(220V 1PH 60HZ)
BLACK

Related product manuals