EasyManua.ls Logo

Trane 4TTA4 - Page 24

Trane 4TTA4
30 pages
Print Icon
To Next Page IconTo Next Page
To Next Page IconTo Next Page
To Previous Page IconTo Previous Page
To Previous Page IconTo Previous Page
Loading...
24 18-AC108D1-1D-EN
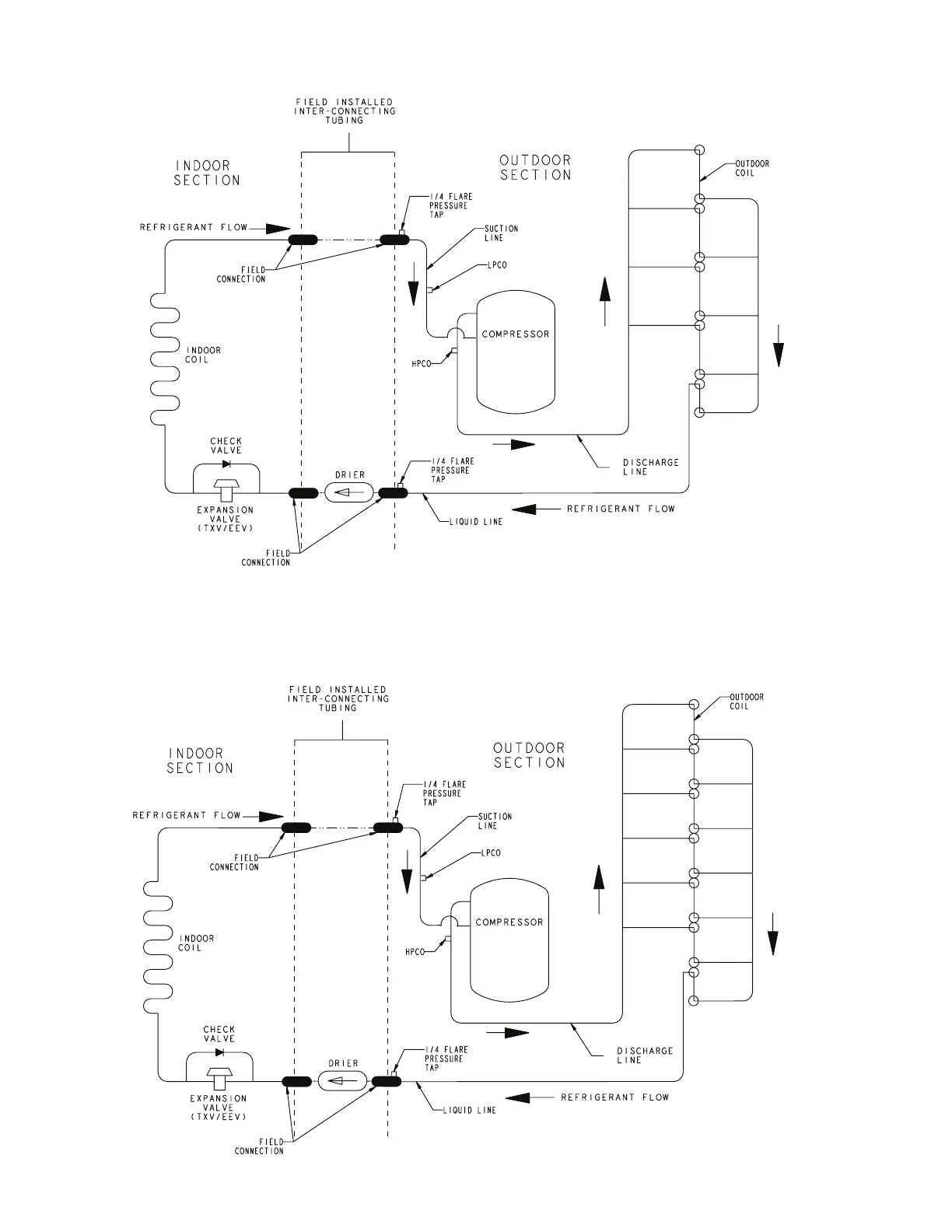
3.5 & 4-Ton Units
PRINTED FROM D158514P01
5-Ton Units
PRINTED FROM D158515P01

Related product manuals