EasyManua.ls Logo

Trane 5TTR4018A - Page 19

Trane 5TTR4018A
26 pages
Print Icon
To Next Page IconTo Next Page
To Next Page IconTo Next Page
To Previous Page IconTo Previous Page
To Previous Page IconTo Previous Page
Loading...
18-AC128D1-1B-EN 19
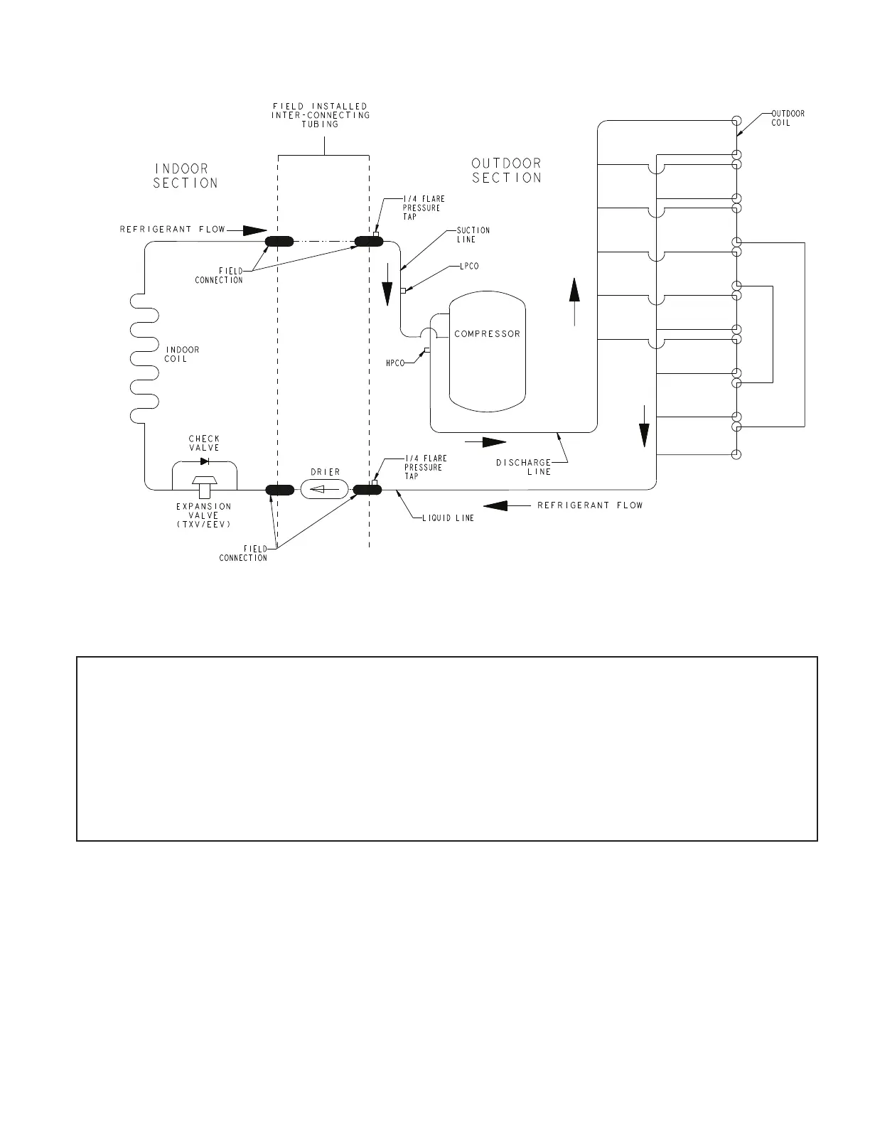
048 & 060 Models
Printed from D159175
16.1 Refrigerant Detection System
The approved ID/OD combination will provide sufficient safe ventilation.
Airflow provided is sufficient to cover minimum room area including adjustments for altitude. All systems require a refrigerant
detection system so no altitude adjustment factors are required.
Installer must ensure refrigerant detection system is connected and placed in appropriate orientation per application.
The control system power shall not be interrupted to ensure the refrigerant detection system is always functioning.
Please reference Indoor Unit installers guide for correct specification on refrigerant detection system.

Related product manuals