EasyManua.ls Logo

Trane 5TTR4018A - Section 16. Refrigeration Circuits

Trane 5TTR4018A
26 pages
Print Icon
To Next Page IconTo Next Page
To Next Page IconTo Next Page
To Previous Page IconTo Previous Page
To Previous Page IconTo Previous Page
Loading...
18 18-AC128D1-1B-EN
PRINTED FROM D157394P01
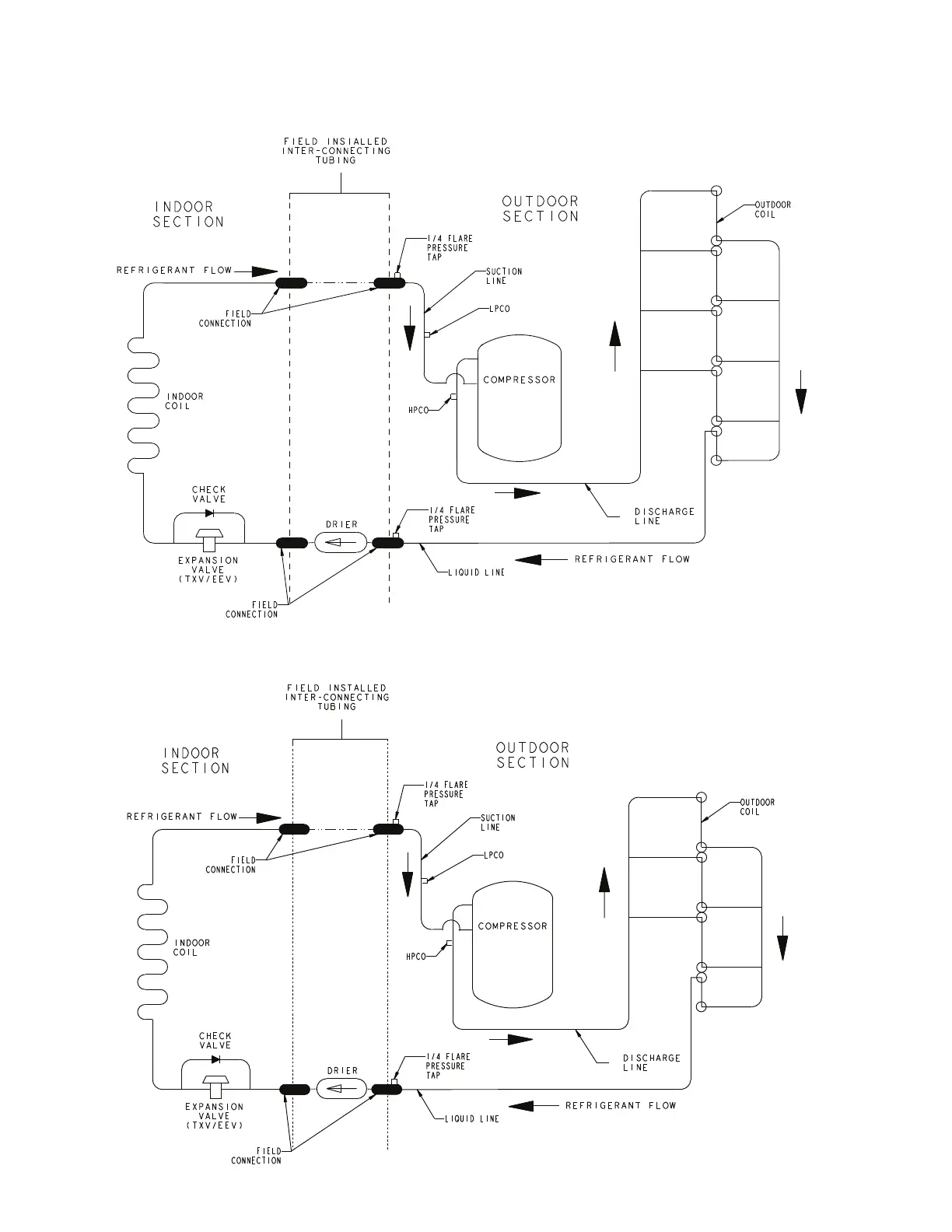
024 & 036 Models
PRINTED FROM D158514P01
018, 030 & 042 Models
Section 16. Refrigeration Circuits

Related product manuals