EasyManua.ls Logo

Trane 5TTR4018A - Page 21

Trane 5TTR4018A
26 pages
Print Icon
To Next Page IconTo Next Page
To Next Page IconTo Next Page
To Previous Page IconTo Previous Page
To Previous Page IconTo Previous Page
Loading...
18-AC128D1-1B-EN 21
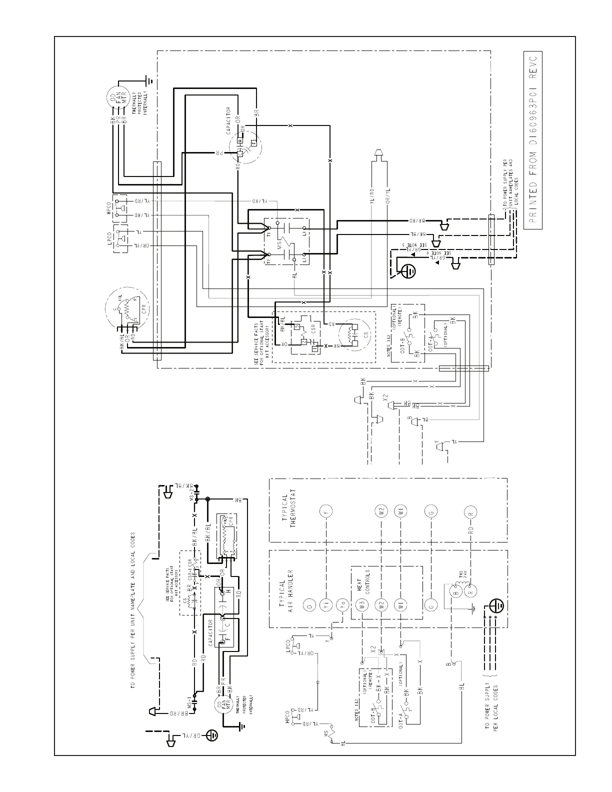
060 Models

Related product manuals