EasyManua.ls Logo

Trane A5AC3018A - Section 16. Refrigerant Circuits (Reference Only)

Trane A5AC3018A
27 pages
Print Icon
To Next Page IconTo Next Page
To Next Page IconTo Next Page
To Previous Page IconTo Previous Page
To Previous Page IconTo Previous Page
Loading...
PRINTED FROM D157394P01
024 & 036 Models
PRINTED FROM D158514P01
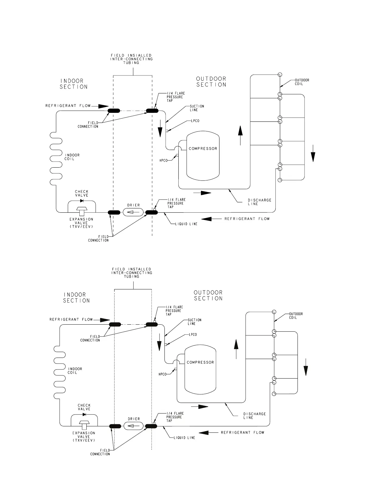
Section 16. Refrigeration Circuits
018, 030 & 042 Models
88-A5AC3001-1A-EN 19

Related product manuals