EasyManua.ls Logo

Trane A5AC3018A - Page 22

Trane A5AC3018A
27 pages
Print Icon
To Next Page IconTo Next Page
To Next Page IconTo Next Page
To Previous Page IconTo Previous Page
To Previous Page IconTo Previous Page
Loading...
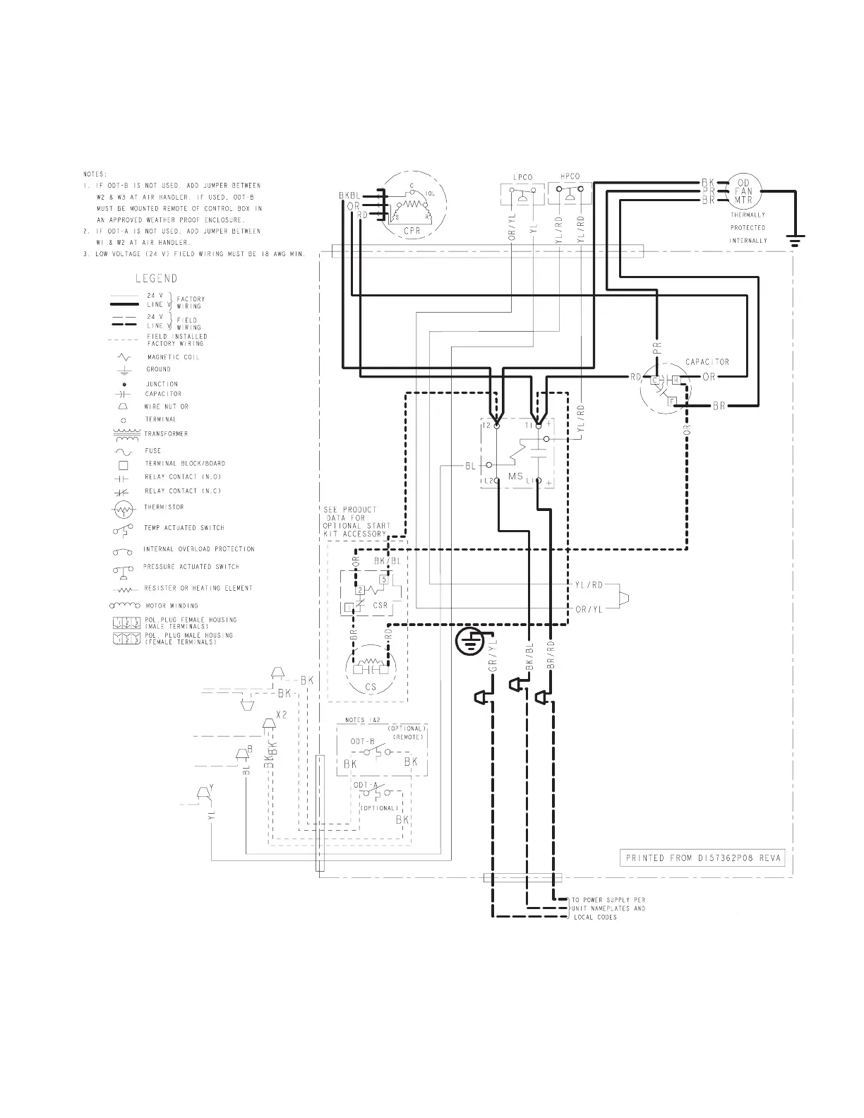
018 - 048 Models
22 88-A5AC3001-1A-EN

Related product manuals