EasyManua.ls Logo

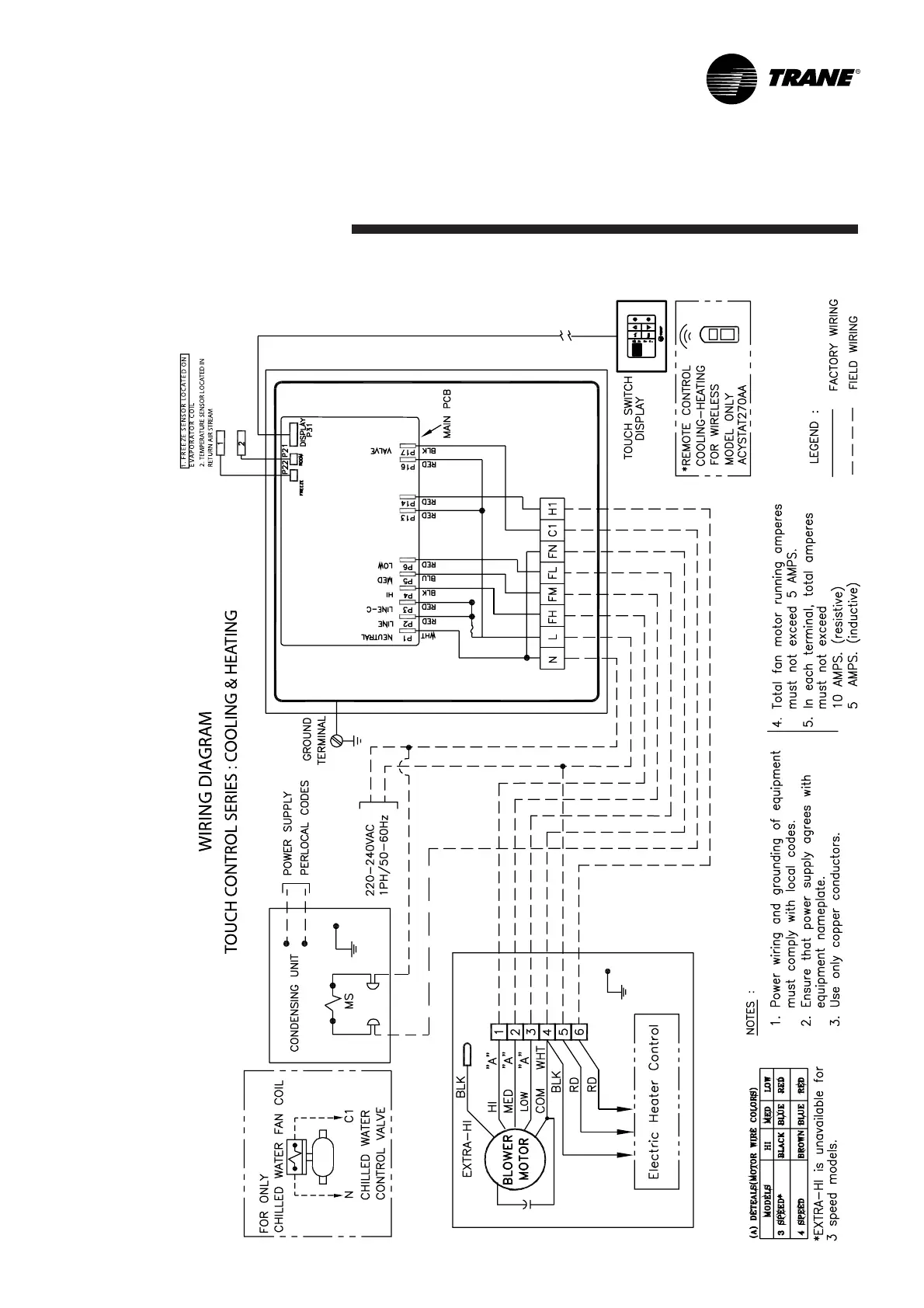
Trane ACYSTAT110AA - Wiring Diagram: Touch Control Series (Cooling & Heating)

Trane ACYSTAT110AA
34 pages
Print Icon
To Next Page IconTo Next Page
To Next Page IconTo Next Page
To Previous Page IconTo Previous Page
To Previous Page IconTo Previous Page
Loading...
ACYSTAT-IOM-EN
29
Wiring diagram

Related product manuals