EasyManua.ls Logo

Trane BCVE - Return and Discharge Attenuators

Trane BCVE
152 pages
Print Icon
To Next Page IconTo Next Page
To Next Page IconTo Next Page
To Previous Page IconTo Previous Page
To Previous Page IconTo Previous Page
Loading...
BCX-SVX002A-EN
27
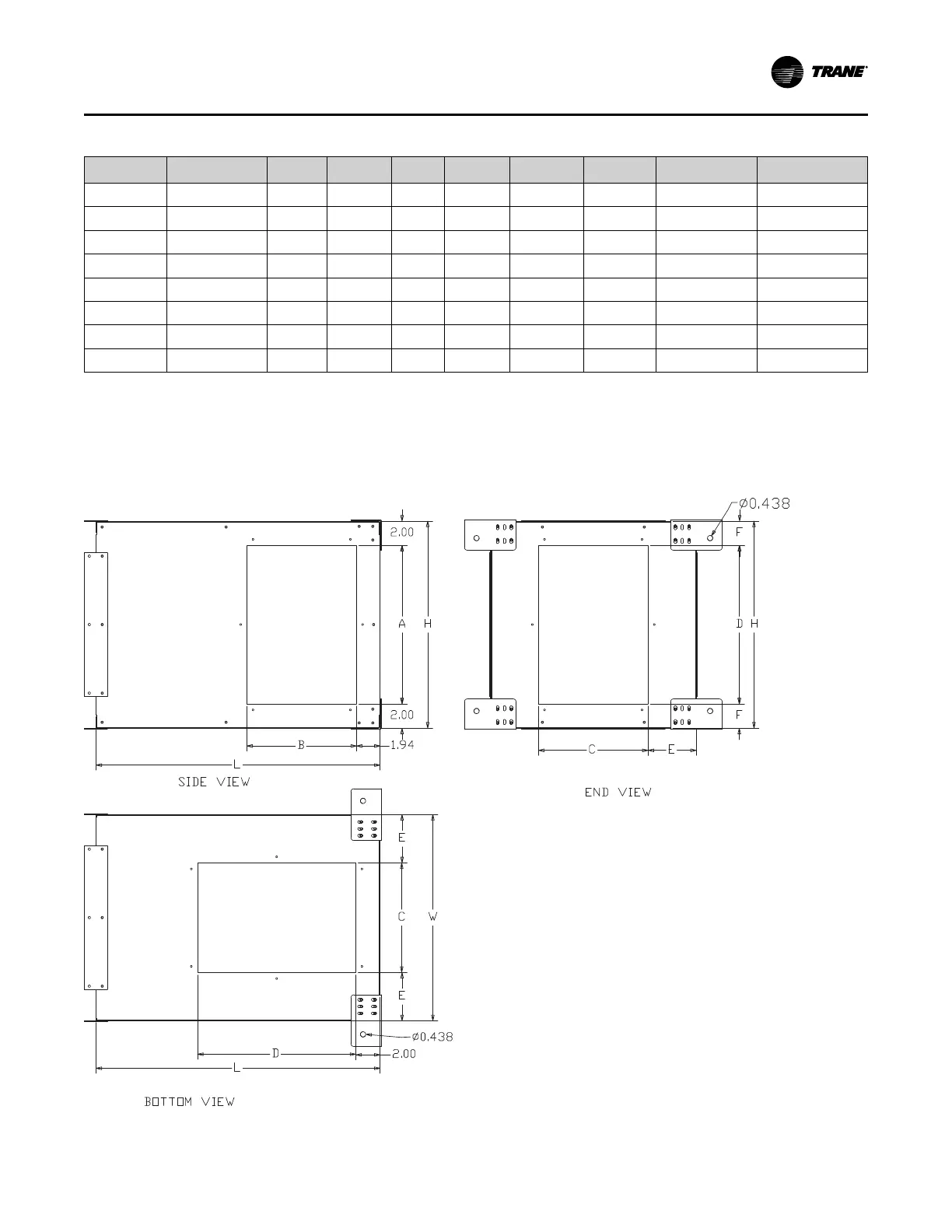
Table 6. Bottom/top access filter box dimensions (inches) and weights (lb)
Unit Size
Unit Type
H W L A B C
SW Weight DW Weight
12 BCHE 17 24 8.17 15 18 19.86 15.22 21.62
18 BCHE 17 28 8.17 15 22 23.86 16.7 23.84
24 BCHE 17 30 8.17 15 24 25.86 17.47 24.98
36 BCHE 17 42 8.17 15 36 37.86 22.52 32.26
54 BCHE 18 46 8.17 16 40 41.86 24.64 35.25
72 BCHE/BCVE 18 58 8.17 16 52 53.86 29.83 42.67
90 BCHE/BCVE 26 48 8.17 24 42 43.86 29.28 41.35
120 BCHE/BCVE 26 58 8.17 24 52 53.86 33.33 46.21
Notes:
1. Out swing hinged door on bottom of unit.
2. Single Wall (SW), Double Wall (DW). Dimensions are the same for SW and DW units.
Return and Discharge Attenuators
Figure 16. BCHE 12 to 120 and BCVE 72 to 120 attenuator
Dimensions and Weights

Table of Contents

Related product manuals