EasyManua.ls Logo

Trane BCVE - Electric Heat

Trane BCVE
152 pages
Print Icon
To Next Page IconTo Next Page
To Next Page IconTo Next Page
To Previous Page IconTo Previous Page
To Previous Page IconTo Previous Page
Loading...
30
BCX-SVX002A-EN
Electric Heat
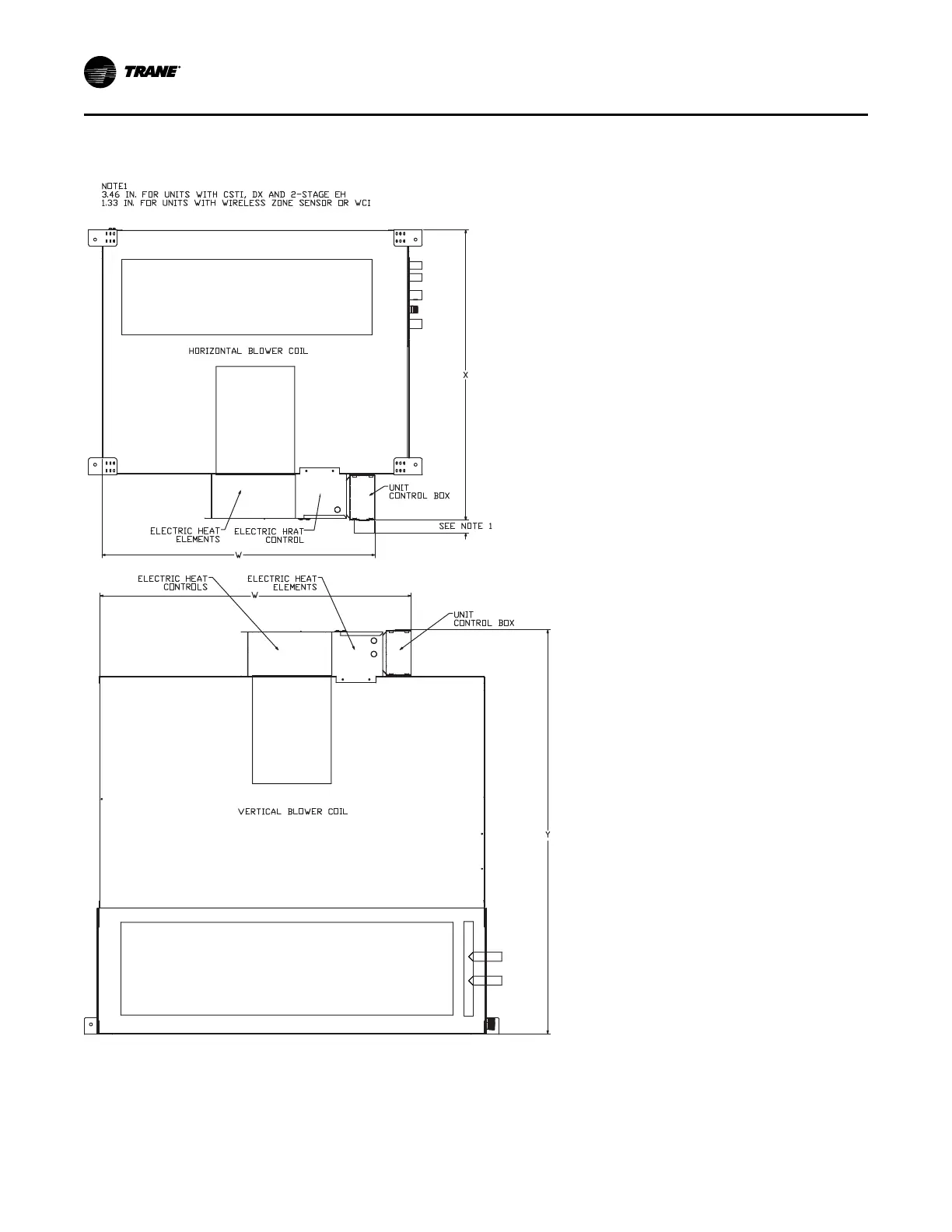
Figure 18. BCHE/BCVE blower coils with electric heat section
Dimensions and Weights

Table of Contents

Related product manuals