EasyManua.ls Logo

Trane CenTraVac CDHG - Page 16

Trane CenTraVac CDHG
36 pages
Print Icon
To Next Page IconTo Next Page
To Next Page IconTo Next Page
To Previous Page IconTo Previous Page
To Previous Page IconTo Previous Page
Loading...
16
CVHE-SVN04M-EN
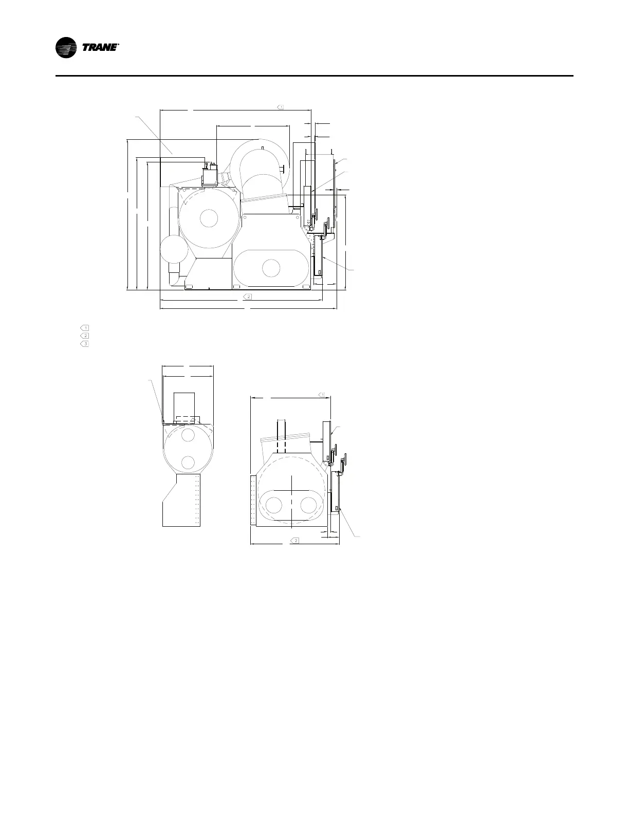
Figure 3. Assembly for CDHF and CDHG CenTraVac chillers (CDHF shown)
NOTES:
D
V
G
H
PURGE
U
MAIN UNIT CONTROL PANEL
OPTIONAL UNIT-MOUNTED
REDUCED-VOLTAGE STARTERS
COMPRESSOR
CONDENSER
ECONOMIZER
EVAPORATOR
ADD 1.5” FOR DISTANCE TO TRACER ADAPTIVIEW™ DISPLAY MOUNTING ARM IN STOWED POSITION.
ADD 2.2” FOR DISTANCE TO TRACER ADAPTIVIEW DISPLAY MOUNTING ARM IN STOWED POSITION (AFD UNITS).
BRACKETS ARE WELDED TO EVAPORATOR ON 900–1210A AFD. SUPPORTS CAN BE UNBOLTED FROM BRACKETS.
AFD
CONTROL PANEL
Y2 (UATR, UPIR, & UXL STARTERS)
Y3 (MOTOR TERMINAL BOX, NOT SHOWN)
Y1 (USTR & USID STARTERS)
CONTROL PANEL
K
X
Z
W
1.0 (90D–1210A AFD)
AFD DISCONNECT SWITCH TO
ENCLOSURE DOOR LATCHES
AFD LOCATION ONLY
R
M
PURGE
CONDENSER
EVAPORATOR
MAIN UNIT
CONTROL PANEL
L
B
BB
CONTROL PANEL
CONTROL PANEL
SUPPORTS FOR THE
OPTIONAL UNIT-MOUNTED
REDUCED-VOLTAGE STARTER
(AUTOTRANSFORMER OR
PRIMARY REACTOR) ENCLOSURE
(ENCLOSURE NOT SHOWN)
AFD LOCATION ONLY
EE
SHELL SEPARATION DIMENSIONS (INCHES)
Data for the following figure is found in Table 6, p. 14
and Table 7, p. 14.
DDiimmeennssiioonnss aanndd WWeeiigghhttss

Related product manuals