EasyManua.ls Logo

Trane CGWF - Page 27

Trane CGWF
100 pages
Print Icon
To Next Page IconTo Next Page
To Next Page IconTo Next Page
To Previous Page IconTo Previous Page
To Previous Page IconTo Previous Page
Loading...
CGWF-SVX01A-EN 27
Installation Mechanical
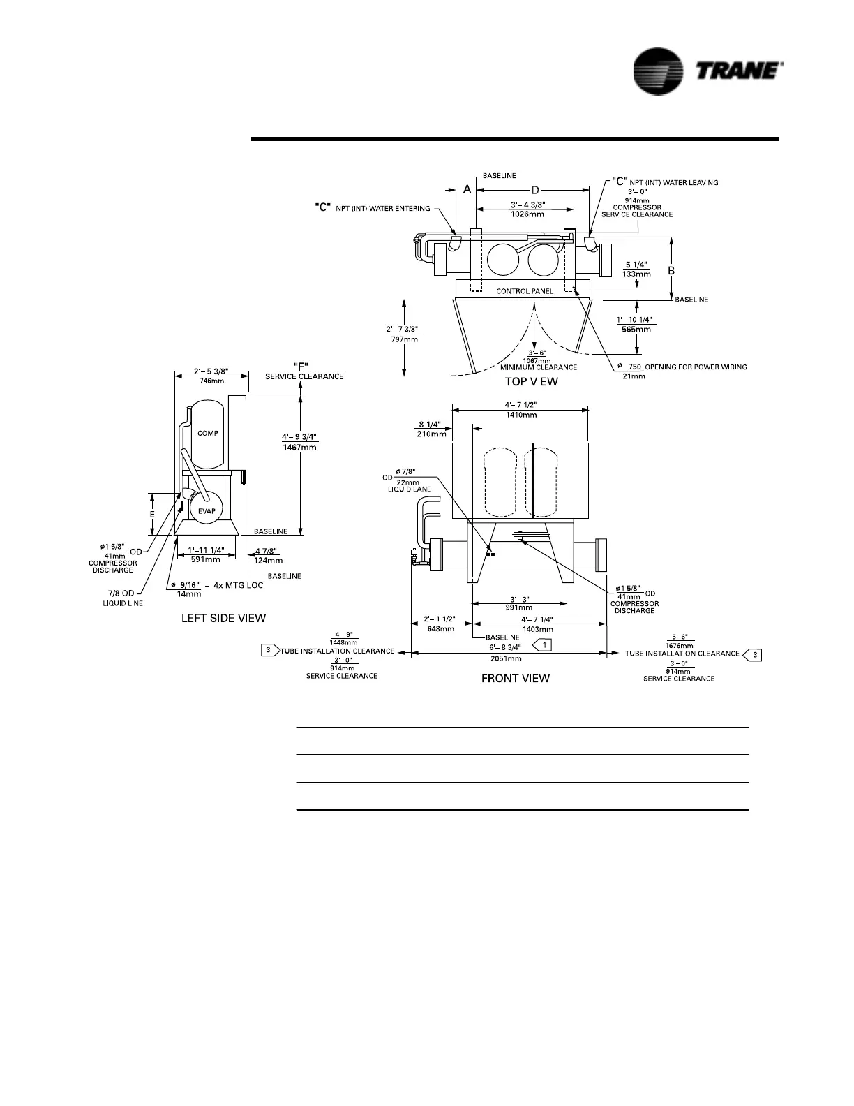
Figure 10 CCAF 20, 25 and 30 Ton Unit Dimensions, Recommended Clearances, Mounting Locations,
Electrical, Water Connection Size and Locations
Size A B C D E F
20 Ton 8 1/2" 3' - 11 1/2" 2" 2' - 0" 1' - 3 1/2" 3' - 3"
(216) (1207) (51) (610) (394) (1041)
25 Ton 8 1/2" 3' - 11 1/2" 2" 1' - 11 3/4" 1' - 3 1/2" 3' - 10"
(216) (1207) (51) (603) (394) (1041)
30 Ton 7 3/4" 3' - 10 3/4" 2 1/2" 2' - 1 7/8" 1' - 5 3/8" 3' - 10"
(197) (1187) (64) (657) (441) (1168)
Notes:
1. Dimensional tolerances ± 1/4" (3mm).
2. Tube installation at either end of evaporator.
3. Dimensions in ( ) are millimeters.

Table of Contents

Related product manuals