EasyManua.ls Logo

Trane FF - Page 16

Trane FF
80 pages
Print Icon
To Next Page IconTo Next Page
To Next Page IconTo Next Page
To Previous Page IconTo Previous Page
To Previous Page IconTo Previous Page
Loading...
16 UNT-SVX07A-EN
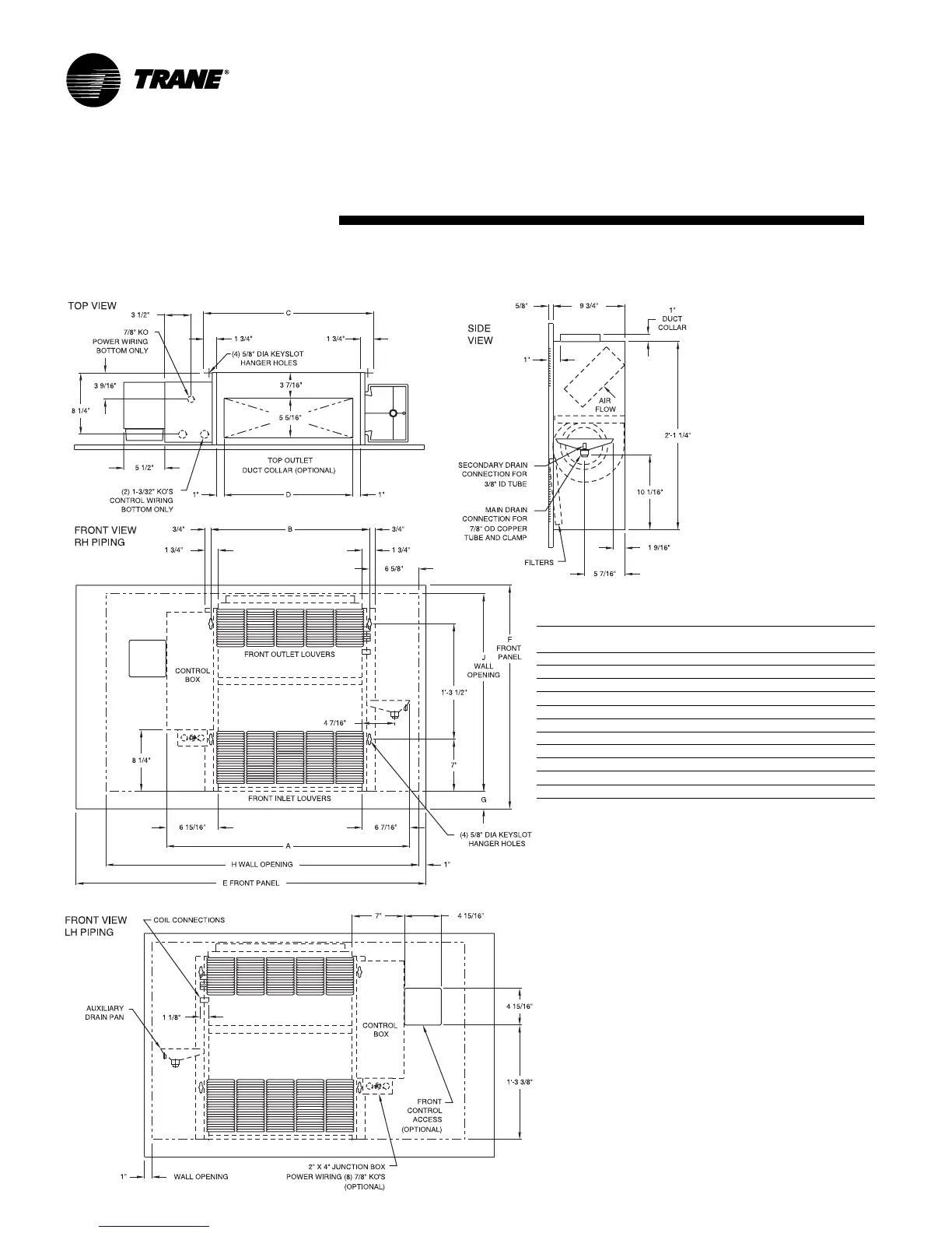
Installation
dimensions
& weights
Vertical Recessed Unit Dimensions, in-lbs.
unit
size 02-03 04 06 08 10-12
A 2’-8
11
/16 3’-1
11
/16 3’-11
3
/16 4’-7
11
/16 6’-2
11
/16
B 1’-9
5
/16 2’-2
5
/16 2’-11
13
/16 3’-8
5
/16 5’-3
5
/16
C 1’-10
13
/16 2’-3
13
/16 3’-1
5
/16 3’-9
13
/16 5’-4
13
/16
D 1’-5
5
/16 1’-10
5
/16 2’-7
13
/16 3’-4
5
/16 4’-11
5
/16
E 3’-11” 4’-3” 5’-3” 5’-5
1
/2 7’-5
1
/2
F 2’-6” 2’-6” 2’-6” 2’-9
1
/2 2’-9
1
/2
G2
3
/8”2
3
/8”2
3
/8”4
1
/8”4
1
/8
H 3’-6” 4’-0” 4’-9” 5’-3” 7’-3”
J 2’-2
1
/2 2’-2
1
/2 2’-2
1
/2 2’-3
1
/2 2’-3
1
/2
operating weight 78 88 128 139 253
shipping weight 68 78 118 129 243
Notes:
1. Coil connections are always on the drain pan side and opposite the control
box.
2. Coil connections are
5
/8” O.D. sweat. See pages 21-22 for locations.
3. All duct collar dimensions are to the outside of the collar.
4. See pages 23-24 for fresh air opening dimensions.
5. Dimension 'G' refers to the required minimum distance between the finished
floor, and the bottom of the unit.
Vertical Recessed, Model H

Other manuals for Trane FF

Related product manuals