EasyManua.ls Logo

Trane FF - Page 18

Trane FF
80 pages
Print Icon
To Next Page IconTo Next Page
To Next Page IconTo Next Page
To Previous Page IconTo Previous Page
To Previous Page IconTo Previous Page
Loading...
18 UNT-SVX07A-EN
Installation
dimensions
& weights
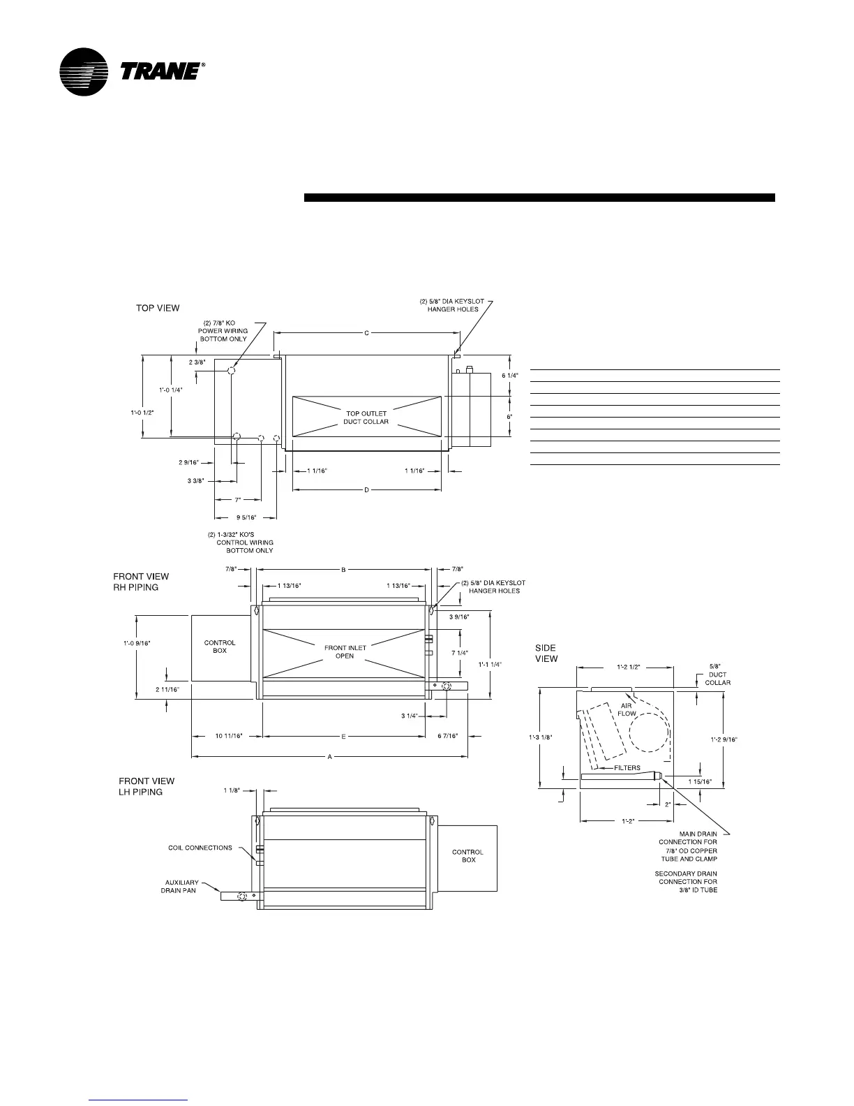
Low Vertical Concealed Unit Dimensions, in-lbs.
unit size 03 04 06
A 3’-5
7
/16 4’-2
15
/16 4’-11
7
/16
B 2’-2
1
/4 2’-11
3
/4 3’-8
1
/4
C 2’-3
15
/16 3’-0
13
/16 3’-9
15
/16
D 1’-10
5
/16 2’-7
13
/16 3’-4
5
/16
E 2’-0
1
/4 2’-9
3
/4 3’-6
1
/4
operating weight 109 139 147
shipping weight 96 123 131
Notes:
1. Coil connections are always on the drain pan side and opposite
the control box.
2. Coil connections are
5
/8” O.D. sweat.
3. All duct collar dimensions are to the outside of the collar.
4. See pages 23-24 for fresh air opening dimensions.
Low Vertical Concealed, Model K

Other manuals for Trane FF

Related product manuals