EasyManua.ls Logo

Trane FF - Page 25

Trane FF
80 pages
Print Icon
To Next Page IconTo Next Page
To Next Page IconTo Next Page
To Previous Page IconTo Previous Page
To Previous Page IconTo Previous Page
Loading...
UNT-SVX07A-EN 25
Installation
dimensions
& weights
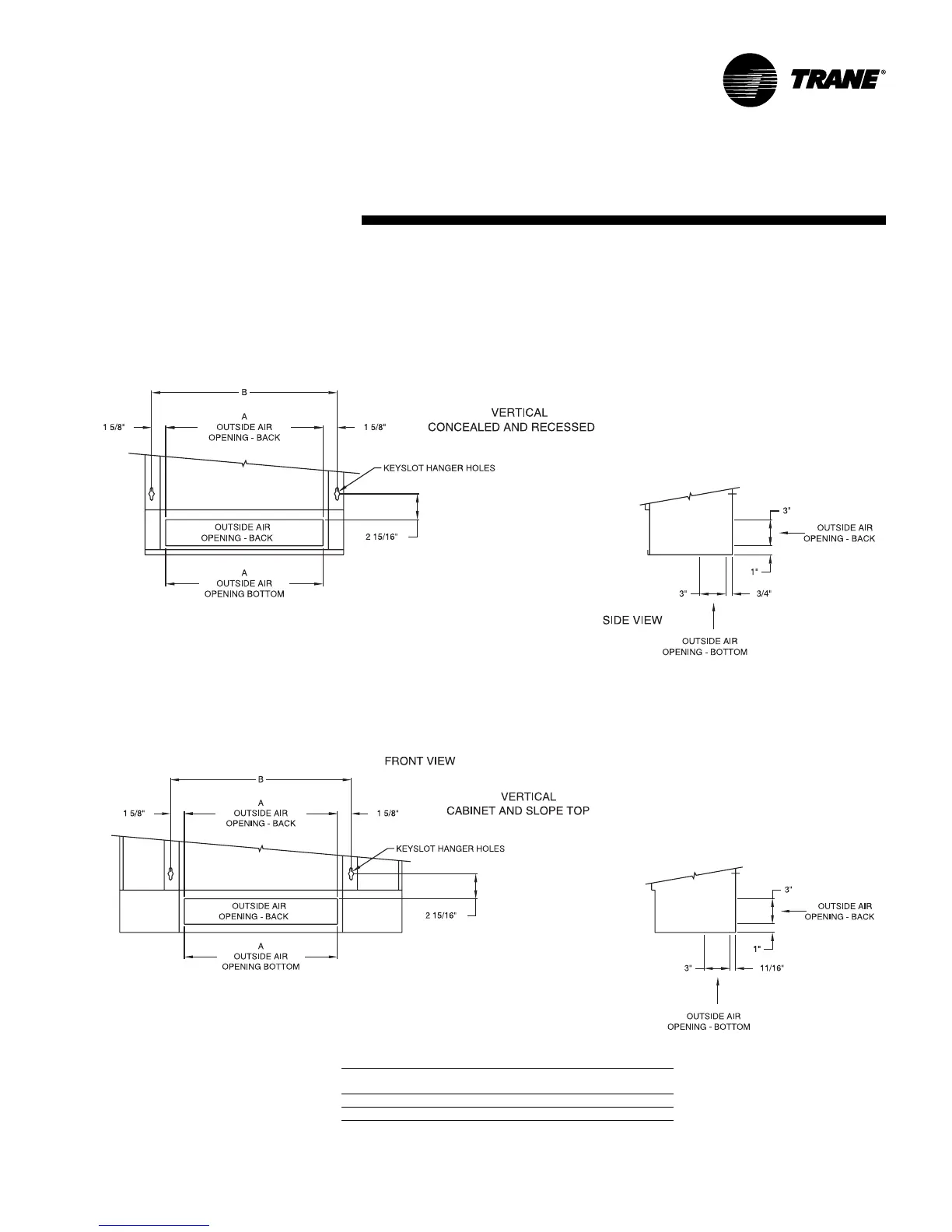
Fresh Air Opening Locations
Vertical Units Models A, B, F, & J
Fresh Air Opening Dimensions, Vertical Units
Unit
Size 02-03 04 06 08 10-12
A 1’-6” 1’-11” 2’-8
1
/2 3’-5” 5’-0”
B 1’-9
5
/16 2’-2
5
/16 2’-11
13
/16 3’-8
5
/16 5’-3
5
/16
WALL HUNG

Other manuals for Trane FF

Related product manuals