EasyManua.ls Logo

Trane RAUC-C50 - Chilled Water Temperature Sensor (Honeywell 6 RT2)

Trane RAUC-C50
112 pages
Print Icon
To Next Page IconTo Next Page
To Next Page IconTo Next Page
To Previous Page IconTo Previous Page
To Previous Page IconTo Previous Page
Loading...
60 SS-SVX09A-EN
Installation
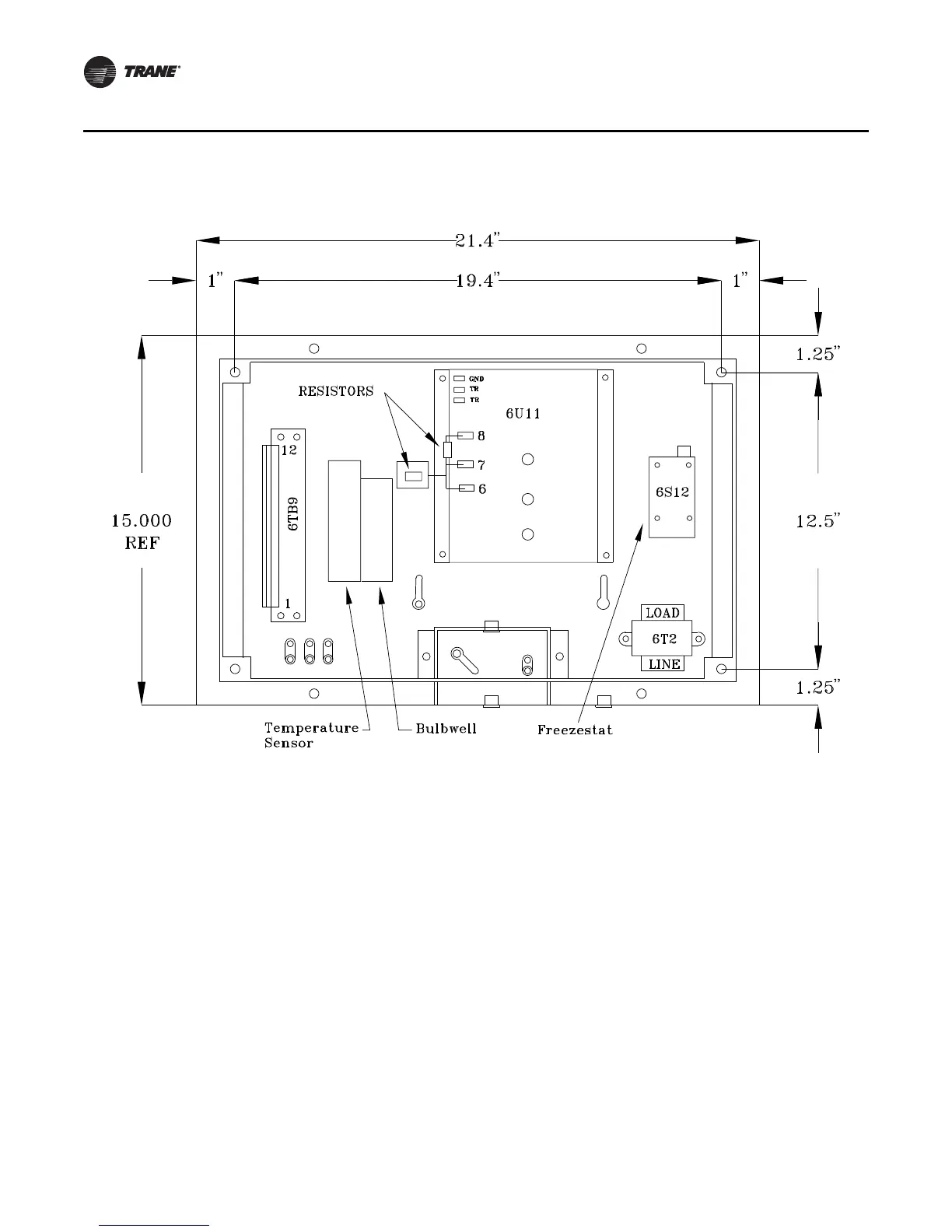
Chilled Water Temperature Sensor (Honeywell 6RT2)
With the sensor installed in its proper location within the chilled water piping (Figure 18), connect
shielded cable (Belden 8760 or equivalent) from the sensor leads to the leads inside the remote
panel. Refer to Figure 28 for the electrical access into the remote panel and the field connection
diagram illustrated in Figure 29 for the final cable termination points.
WARNING
Ground Wire!
All field-installed wiring must be completed by qualified personnel. All field-installed wiring
must comply with NEC and applicable local codes. Failure to follow this instruction could result
in death or serious injuries.
WARNING
Grounding Required!
Follow proper local and state electrical code on requirements for grounding. Failure to follow
code could result in death or serious injury.
Note: Connect the shield ground to the ground screw inside the remote panel. Do not connect
both ends of the shield to ground.
Figure 28. EVP Chiller Remote Panel

Table of Contents

Related product manuals