EasyManua.ls Logo

Trane RAUJ-D12 - Hot Gas Bypass for Commercial Comfort-Cooling Applications; Optional Pressure Gauges

Trane RAUJ-D12
132 pages
Print Icon
To Next Page IconTo Next Page
To Next Page IconTo Next Page
To Previous Page IconTo Previous Page
To Previous Page IconTo Previous Page
Loading...
52
SS-SVX11K-EN
Figure 35. Intertwined
thermal expansion
valves (TXV)
distributor
suction lines
Evaporator Coil with
Intertwined Circuiting
liquid line
(circuit 1)
filter drier
liquid line
(circuit 2)
solenoid
valve
sight
glass
(circuit 1)
(circuit 2)
Hot Gas Bypass for Commercial Comfort-
Cooling Applications
Hot gas bypass is not recommended for use on RAUJ
units. Frostat is the preferred method of protecting
the evaporator from freeze-up. It turns off compressors
when the coil frosting is sensed. The compressor is
allowed to operate when the coil temperature rises a
few degrees above the frosting condition. This action
reduces the overall energy consumption of the system
while reliably maintaining system control.
For more information, see Hot Gas Bypass Engineers
Newsletter, ADM-APN007-EN.
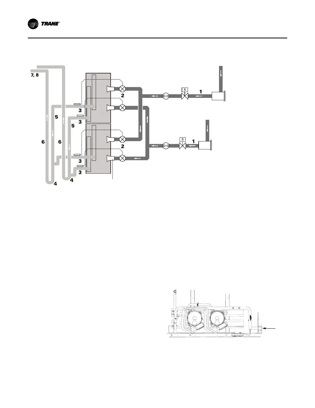
Optional Pressure Gauges
When a unit is ordered with optional pressure gauges,
(model number digit 16 = F), a set of gauges and the
necessary mounting hardware ship with the unit. See
General Information chapter for ship-with location on
unit. The mounting location and tubing configuration
for the optional pressure gauges after field installation
is shown below.
1. Assemble the valve depressor, flare nuts, 1/4"
copper tubing, 90 degree flare elbows, gauge &
gauge bracket together as shown in Detail “A” &
“B”.
NNoottee:: Wrap all appropriate pipe threads with Teflon
tape before assembly.
2. Remove the valve stem cap and place the valve
depressor (with tubing connected) onto the valve
stem and tighten.
NNoottee:: Do not install the valve depressor without the
tubing being connected. If gauges need to be
replaced, remove valve depressor from valve
stem, first, to prevent loss of refrigerant
charge.
3. Using the gauge bracket as a template for the self-
tapping screws, mount the gauge bracket
approximately 1/2" to 3/4" from the outer edge of
the base rail, relative to the compressors for that
circuit, as illustrated.
4. Apply 6" strips of edge protector to both side
flanges of the gauge bracket, to prevent the bracket
from cutting into the power wires.
Figure 36. Pressure gauges 20 - 60 Ton units: plan
view
Suction Connection
IInnssttaallllaattiioonn MMeecchhaanniiccaall

Table of Contents

Related product manuals