EasyManua.ls Logo

Trane RAUJ-D12 - Page 83

Trane RAUJ-D12
132 pages
Print Icon
To Next Page IconTo Next Page
To Next Page IconTo Next Page
To Previous Page IconTo Previous Page
To Previous Page IconTo Previous Page
Loading...
SS-SVX11K-EN
83
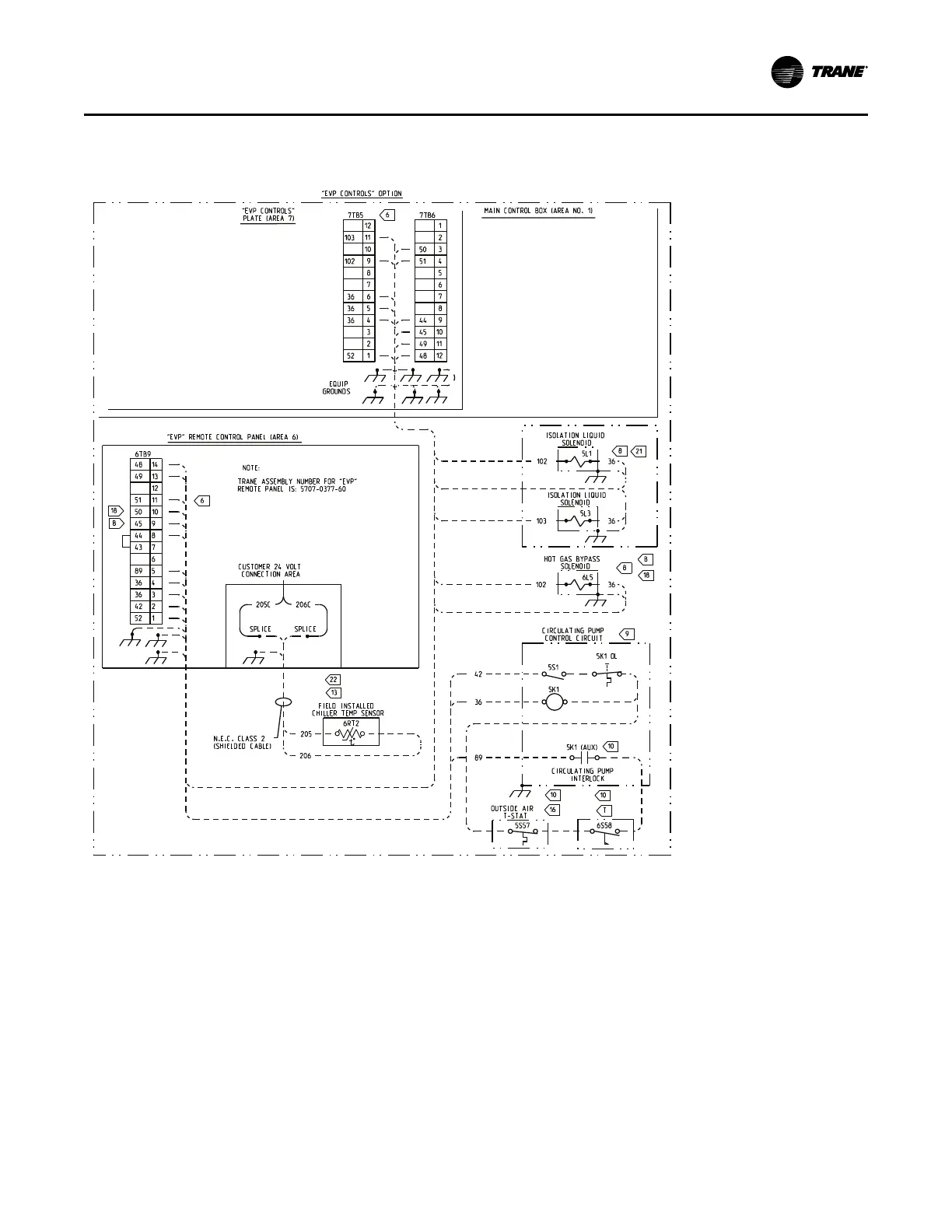
Figure 57. Field connection diagram - RAUJ-C20-60 - EVP chiller applications
2307-9122
NNoottee:: See wiring notes on previous figure “Field
Connection Diagram Notes RAUJ 20 to 60 tons
No System Controls”.
IInnssttaallllaattiioonn EElleeccttrriiccaall

Table of Contents

Related product manuals